Spazio ufficio in affitto - Avenue De La Gare 45, 1920 Martigny
Perché amerai questa proprietà
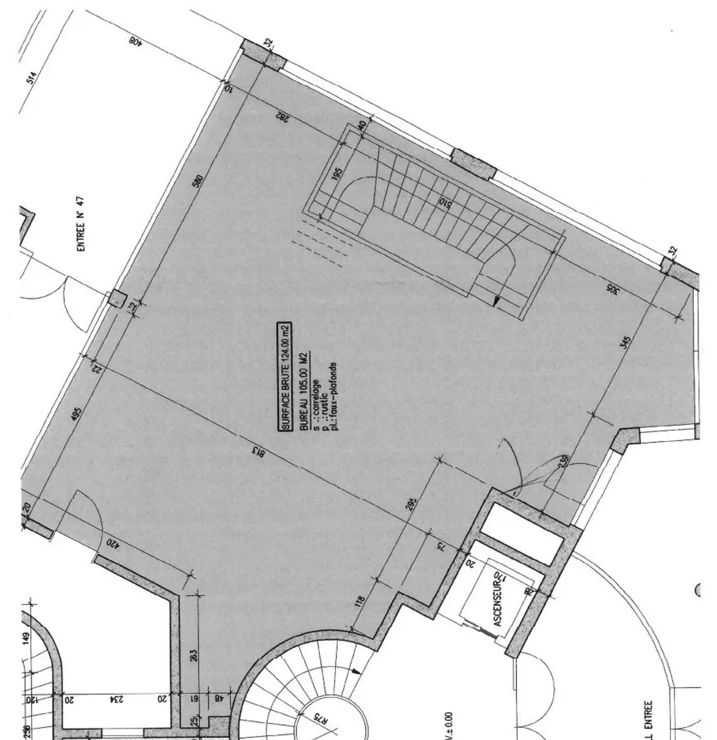
Spazio commerciale luminoso di 105 m²
Area sotterranea versatile di 120 m²
2 posti auto sotterranei inclusi
Organizza una visita
Prenota una visita con Stéphane oggi!
Da consegnare - uffici con grande visibilità
OMNIA Immobilier offre uffici che sono idealmente situati vicino alla stazione ferroviaria di Martigny, con una vetrina che beneficia di una posizione strategica con un alto traffico pedonale e un'eccellente visibilità, grazie alla sua grande vetrina.
Questo spazio è perfetto per ospitare un'attività commerciale, un ufficio o un'attività di servizio che desidera beneficiare di un ambiente dinamico e centrale.
Caratteristiche dell'arcade:
105 m² di spazio al piano terra, luminoso e facile da prog...
Dettagli immobile
- Disponibile dal
- 01.10.2025
- Stanze
- 1
- Superficie abitabile
- 225 m²
- Superficie utilizzabile
- 225 m²



