Spazio ufficio in affitto - Birkenstrasse 43a, 6343 Rotkreuz
Perché amerai questa proprietà
Utilizzo multifunzionale flessibile
Stanze luminose alte 3m
Accesso facile ai mezzi pubblici
Organizza una visita
Prenota una visita con Andreas oggi!
Spazi per uffici versatili a rotkreuz - scopri ora e...
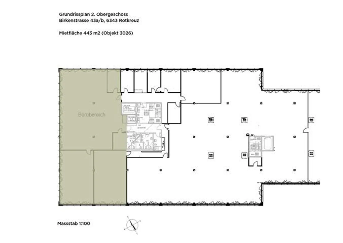
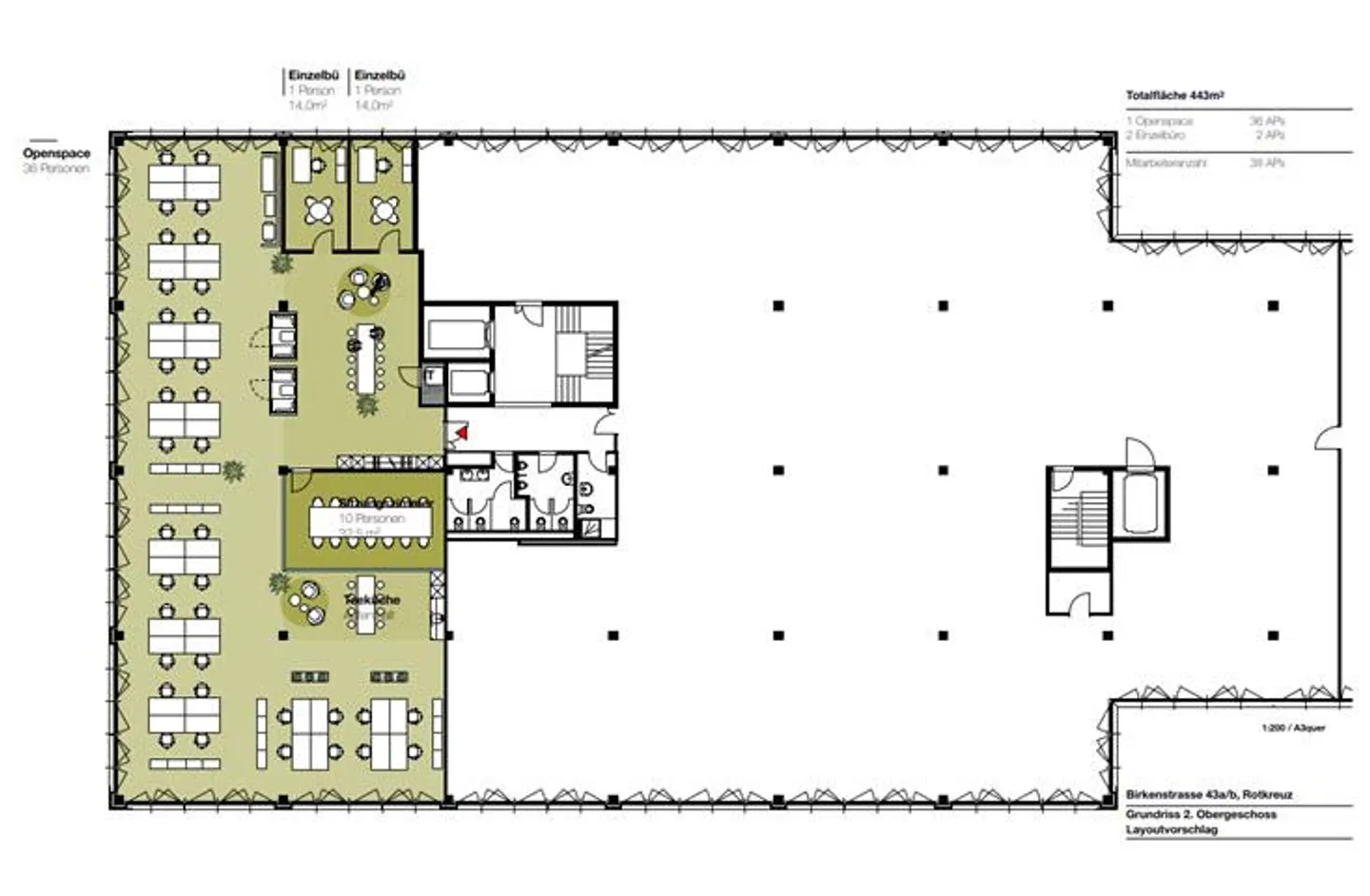
In Birkenstrasse 43a/b a Rotkreuz, è disponibile per l'affitto uno spazio per uffici di 443m².
La proprietà, progettata come edificio multifunzionale, consente un utilizzo versatile e flessibile al di sopra della media. L'allestimento esistente include spazi per uffici moderni pronti per essere occupati.
L'area in affitto colpisce per le sue generose altezze dei locali di 3 metri, che, unite agli ambienti luminosi, creano un ambiente di lavoro aperto e ispiratore. L'area in affitto è accessibile t...
Dettagli immobile
- Disponibile dal
- Su accordo
- Anno di costruzione
- 1998



