Spazio ufficio in affitto - Birkenstrasse 43a, 6343 Rotkreuz
Perché amerai questa proprietà
Opzioni di utilizzo flessibili
Soffitti alti 3 metri
Rampa di carico comoda
Organizza una visita
Prenota una visita con Andreas oggi!
Spazi commerciali attraenti in una posizione ideale - per vari ...
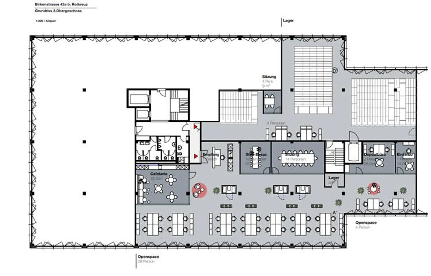
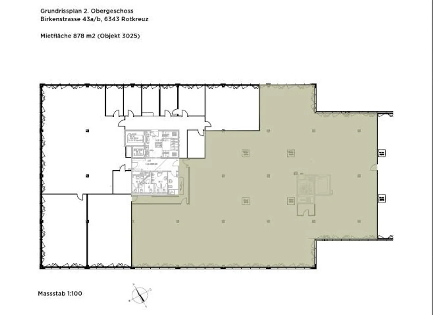
In Birkenstrasse 43a/b a Rotkreuz, è disponibile un'area commerciale di 878 m² in affitto.
La proprietà, progettata come edificio multifunzionale, consente un utilizzo particolarmente versatile e flessibile. Questo rende i locali particolarmente adatti alle diverse esigenze di uffici, attività commerciali, vendite e servizi. Le aree in affitto sono in espansione commerciale con pavimenti in PVC o rivestimento in cemento, offrendo così opzioni di design individuali in base alle vostre esigenze.
Ino...
Dettagli immobile
- Disponibile dal
- Su accordo
- Anno di costruzione
- 1998



