Spazio ufficio in affitto - Flughofstrasse 41, 8152 Glattbrugg
Perché amerai questa proprietà
Grandi finestre luminose
Layout flessibili
Vicino all'aeroporto di Zurigo
Organizza una visita
Prenota una visita oggi!
Spazi per uffici attraenti – Migliore posizione vicino all'aeroporto
L'edificio commerciale è generosamente progettato e forma un punto di riferimento con la sua architettura in mattoni distintivi.
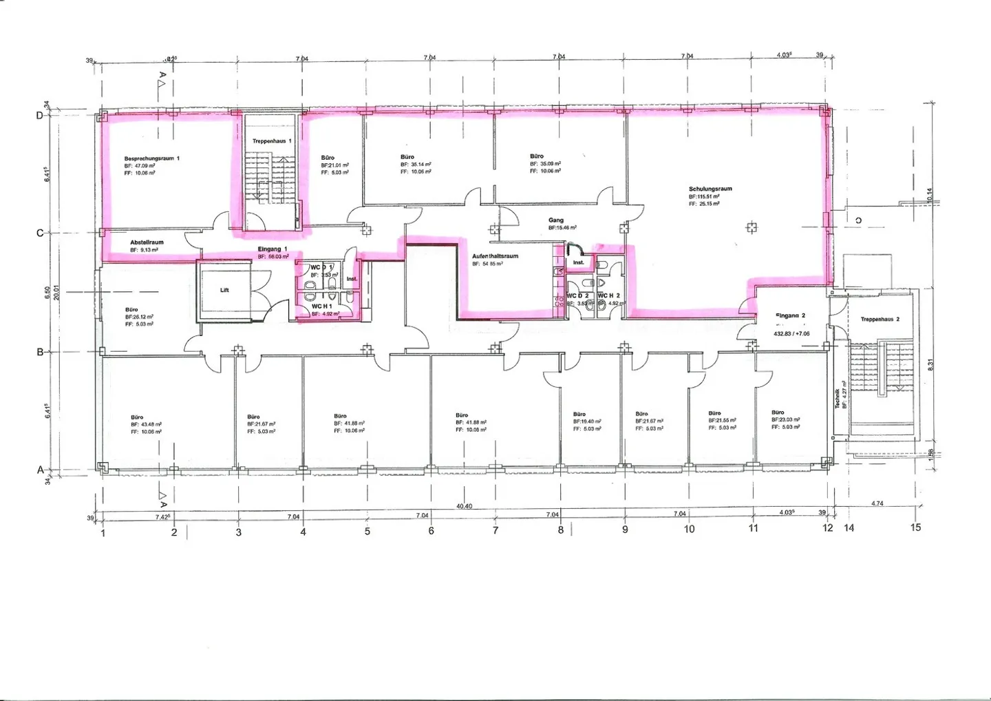
Gli spazi per uffici sono completamente finiti, dotati di una cucina e pronti per essere occupati. Grandi facciate di finestre luminose. C'è ancora la possibilità di progettare i piani.
Per eventuali operazioni di stoccaggio, è disponibile una rampa di carico con un ascensore. L'ascensore spazioso collega la rampa di carico con tutti i piani.
Oggetti in affitto:
Seminterra...
Dettagli immobile
- Disponibile dal
- Su accordo



