Commerciale in affitto - Stettfurterstrasse 40, 9548 Matzingen
Perché amerai questa proprietà
Luminoso con luce naturale
Dotato di lavabo
Spazi isolati e riscaldati
Organizza una visita
Prenota una visita con Borcherding oggi!
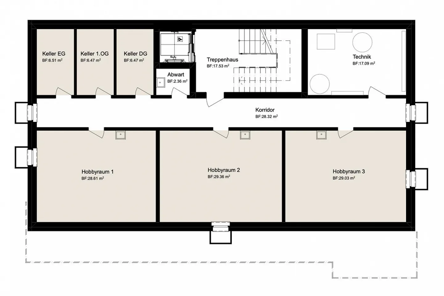
Studio, Magazzino, Stanza Hobby
Affittiamo due stanze hobby nel seminterrato della nostra casa trifamiliare:
- Ogni stanza dispone di una finestra (pozzetto di luce)
- Lavabo con acqua fredda e calda
- Le stanze sono isolate e riscaldabili
- I costi aggiuntivi saranno fatturati separatamente
- Adatto come spazio di stoccaggio, studio, stanza hobby
Dettagli immobile
- Disponibile dal
- Su accordo
- Anno di costruzione
- 2024



