Spazio ufficio in affitto - Ringstrasse 40, 4900 Langenthal
Perché amerai questa proprietà
Spazi luminosi e aperti
Pavimento in parquet moderno
Posizione centrale con parcheggio
Organizza una visita
Prenota una visita con Stefan oggi!
Spazio commerciale flessibile a langenthal
Spazio commerciale flessibile a Langenthal
Affittiamo locali commerciali attraenti e luminosi in una posizione centrale a Langenthal.
Lo spazio si distingue per le grandi vetrate, un'atmosfera accogliente e possibilità di utilizzo flessibili.
Caratteristiche:
- Ambienti luminosi e aperti con molta luce naturale
- Pavimento in parquet moderno
- Altezza e design degli spazi generosi
- Adatto per ufficio, studio, showroom, atelier o area vendita
- Posizione centrale con buona accessibilità (trasporto pubbl...
Dettagli immobile
- Disponibile dal
- Su accordo
- Stanze
- 1
- Anno di ristrutturazione
- 2024
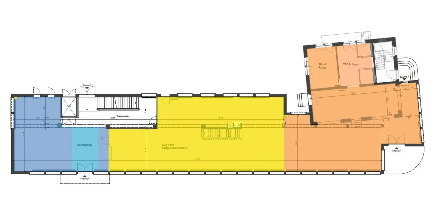
- Superficie abitabile
- 421 m²
- Superficie utilizzabile
- 421 m²



