Spazio ufficio in affitto - Avenue De Rhodanie 40, 1007 Lausanne
Perché amerai questa proprietà
Vista lago mozzafiato
Certificato Minergie
Ristorante in loco
Organizza una visita
Prenota una visita con Bauden oggi!
Ufficio
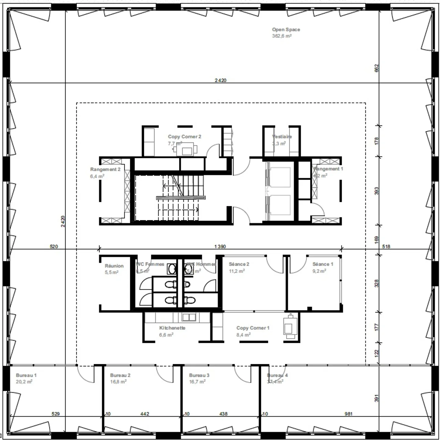
Uffici prestigiosi in affitto - Avenue de Rhodanie a Losanna - 541m2 con vista lago
Spazi per uffici situati in Avenue de Rhodanie 40 in un complesso moderno e certificato che offre servizi di alta qualità in un ambiente eccezionale a Losanna.
Questo spazio è molto luminoso, si affaccia sul lago e rifletterà la tua immagine di marca.
Punti salienti:
• Spazio certificato Minergie
• A 2 minuti a piedi dal lago
• Luce naturale / flessibilità dello spazio
• Ristorante in loco
• Sale riunioni disponibi...
Dettagli immobile
- Disponibile dal
- Su accordo
- Superficie abitabile
- 541 m²



