Commerciale in affitto - Widnauerstrasse 4, 9435 Heerbrugg
Perché amerai questa proprietà
Posizione centrale
Ampia facciata in vetro
Utilizzo flessibile disponibile
Organizza una visita
Prenota una visita con florian.rothauge@sgpk.ch oggi!
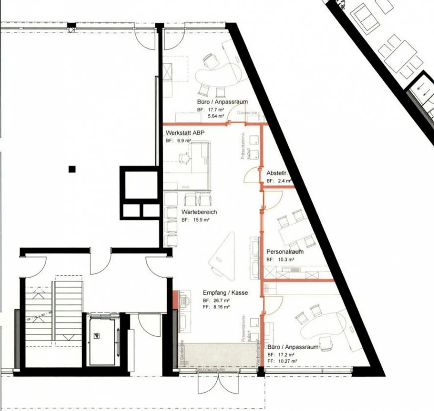
Spazio commerciale/uffici utilizzabili in modo flessibile in una posizione ben frequentata
Lo spazio commerciale si trova in una posizione centrale, nelle immediate vicinanze della stazione ferroviaria e della fermata degli autobus di Heerbrugg. La Widnauerstrasse appare attraente ed è molto frequentata. Pertanto, sono soddisfatti i requisiti importanti per una posizione commerciale promettente.
Lo spazio commerciale si trova al piano terra ed è orientato verso la Widnauerstrasse. La fine di questa strada invitante è caratterizzata da una generosa facciata in vetro.
È disponibile uno sp...
Dettagli immobile
- Disponibile dal
- Su accordo



