Proprietà industriale in affitto - Rue Des Sablières 4, 1242 Satigny
Perché amerai questa proprietà
Uffici flessibili
Altezza di 6,5 m
Accesso ottimale per camion
Organizza una visita
Prenota una visita con Picque oggi!
Oggetto industriale
Spazio industriale in affitto – Satigny – Rue des Sablières 4–6
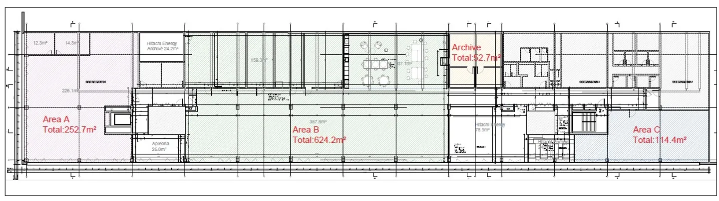
Situato in Rue des Sablières 4–6 a Satigny, questo edificio offre una hall industriale non divisibile al piano terra e uffici modulari al piano superiore. Grazie alle sue attrezzature tecniche – montacarichi, altezza libera di 6,5 m, carroponte, porta sezionale – questo sito offre un ambiente ideale per aziende industriali, logistiche o tecnologiche in cerca di funzionalità e flessibilità.
Punti salienti:
755 m² di hall di produzion...
Dettagli immobile
- Disponibile dal
- Su accordo
- Superficie abitabile
- 755 m²



