1 / 10

Proprietà industriale in affitto - Rue Des Sablières 4, 1242 Satigny

991 m²
CHF 16’517.-
CHF 200 m² / year

Perché amerai questa proprietà

Layout uffici flessibili

Altezza soffitti di 7m

20 posti auto disponibili

Organizza una visita

Prenota una visita oggi!

CBRE Genève
Questa descrizione è stata tradotta automaticamente da Francese.

Spazi di produzione e uffici in affitto a satigny

Locali arredati

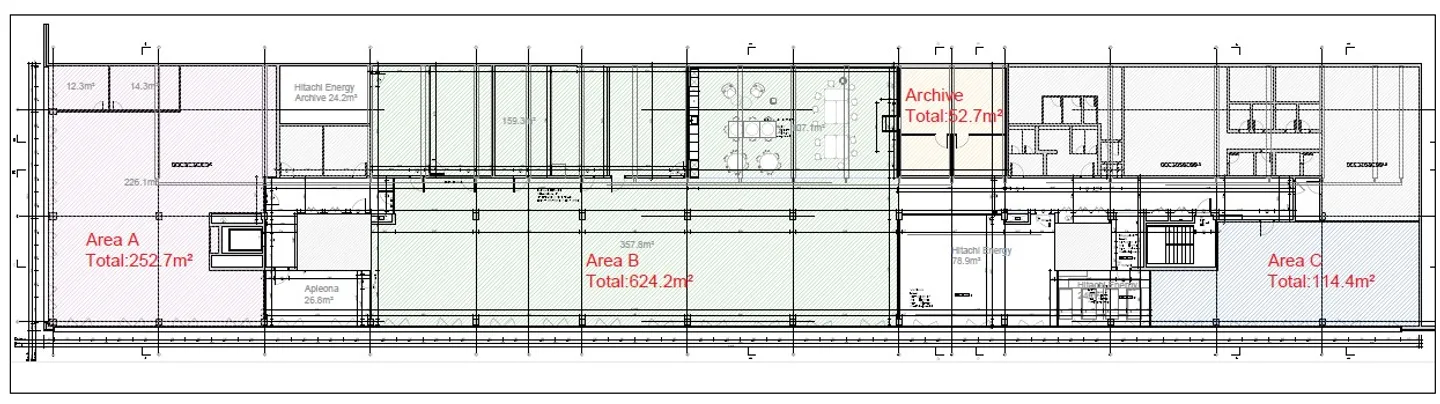
991 m2 di uffici divisibili come segue: 252,7 m2, 624,2 m2, 114,4 m2

755 m2 di spazi di produzione/magazzino

Ascensore

Blocchi sanitari con docce

1 montacarichi (carico massimo 1'600kg) e 2 montacarichi (carico massimo 3'200kg)

Gru al piano terra

Carico utile: 1 tonnellata

Altezza al piano terra: 7m

Sprinkler

Rilevazione incendi

20 posti auto (CHF 2'400.-/unità/anno)

Disponibilità dopo accordo

Dettagli immobile

Disponibile dal
Su accordo
Superficie abitabile
991

Agenzia

CBRE Genève
Ref: 53009.849804
Online da
15/10/2025
5 giorni fa

Località

Rue Des Sablières 4, 1242 Satigny

Fonti