Proprietà industriale in affitto - Rue Des Sablières 4, 1242 Satigny
Perché amerai questa proprietà
Layout uffici flessibili
Ascensore e montacarichi
Posti auto disponibili in loco
Organizza una visita
Prenota una visita con Picque oggi!
Oggetto industriale
Spazi per uffici in affitto a Satigny
Locali arredati
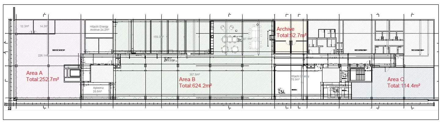
991 m2 di uffici divisibili a partire da 252 m2
Ascensore/Montacarichi
Blocchi sanitari con docce
1 montacarichi (carico massimo 1.600 kg) e 2 ascensori (carico massimo 3.200 kg)
Sprinkler
Rilevazione incendi
20 posti auto (CHF 2.400.-/unità/anno)
Disponibilità dopo accordo
Dettagli immobile
- Disponibile dal
- Su accordo
- Superficie abitabile
- 624 m²



