1 / 6

Spazio ufficio in affitto - Rue Des Sablières 4, 1242 Satigny

267 m²
CHF 4’450.-
CHF 200 m² / year

Perché amerai questa proprietà

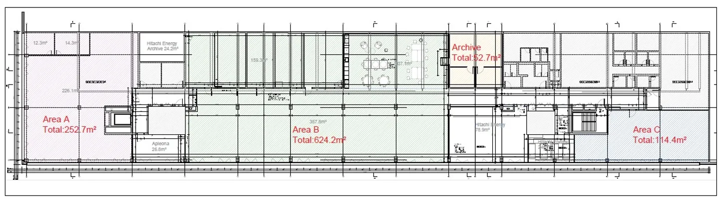
991 m2 di uffici

755 m2 di produzione

Ascensore e rampa di carico

Organizza una visita

Prenota una visita con Picque oggi!

Picque Victor
CBRE Genève
Questa descrizione è stata tradotta automaticamente da Tedesco.

Spazi per produzione e uffici in affitto a satigny

Stanze attrezzate

991 m2 di uffici, divisibili a partire da 267 m2

755 m2 di spazi di produzione e magazzino

Ascensore/rampini di carico

Blocchi sanitari con docce

1 rampa di carico (carico massimo 1'600kg) e 2 rampe di carico (carico massimo 3'200kg)

Carico utile: 1 tonnellata

Altezza al piano terra: 7m

Impianto sprinkler

Sistema di allerta incendio

20 posti auto (CHF 2'400.-/unità/anno)

Disponibilità su accordo

Affitto: da CHF 200/m2/anno

Dettagli immobile

Disponibile dal
Su accordo
Superficie abitabile
267
Superficie utilizzabile
267

Agenzia

CBRE Genève
Indirizzo:33 Rue des Bains, 1205, Genève
Picque Victor
Ref: 53009.847170

Località

Rue Des Sablières 4, 1242 Satigny

Fonti