Commerciale in affitto - Route de la Chocolatière 4, 1026 Echandens
Perché amerai questa proprietà
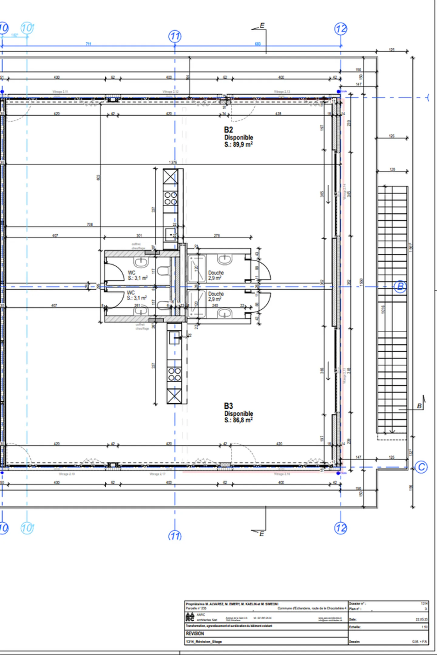
Spazio personalizzabile di 89 m2
Cucina attrezzata
WC e doccia privati
Organizza una visita
Prenota una visita oggi!
Nuovi uffici arredati a echandens
Offriamo in affitto uno spazio ufficio nuovo di 89 m2 situato in Chemin de la Chocolatière 4 a Echandens (locale B2 secondo il piano).
Questa proprietà offre allestimenti moderni e funzionali, con la possibilità di personalizzare lo spazio secondo le vostre esigenze.
Caratteristiche principali:
- Superficie di 89 m2 con layout libero
- Cucina attrezzata
- WC e doccia privati
- Distribuzione elettrica e riscaldamento installati
Vantaggi aggiuntivi:
- Edificio nuovo e ben posizionato
- Posti auto estern...
Ripartizione dei costi
- Affitto netto
- CHF 1’600
- Costi aggiuntivi
- CHF 100
- Totale delle locazioni
- CHF 1’600
Dettagli immobile
- Disponibile dal
- 01.01.1970
- Superficie abitabile
- 89 m²
- Superficie utilizzabile
- 89 m²



