Spazio ufficio in affitto - Zürichstrasse 38b, 8306 Brüttisellen
Perché amerai questa proprietà
Uffici luminosi e spaziosi
Cucina condivisa
Ottimi collegamenti di trasporto
Organizza una visita
Prenota una visita con N. oggi!
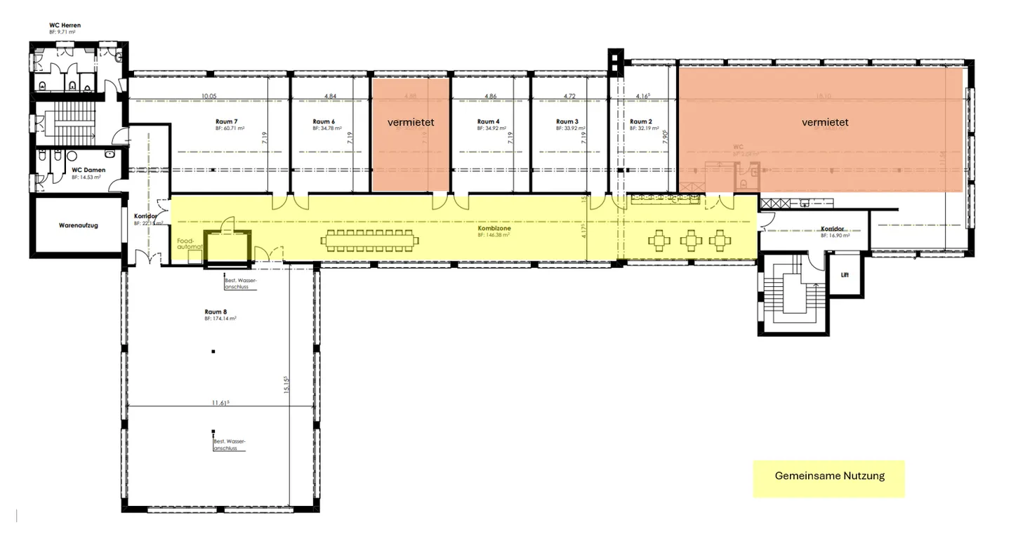
Spazi per uffici / atelier moderni in affitto a Wangen-Brüttisellen
Scopri questi spazi attraenti e recentemente sviluppati nell'area storica di Walder, nel cuore di Wangen-Brüttisellen. Ideale per liberi professionisti e piccole imprese che apprezzano anche l'interazione con altre aziende. È possibile un utilizzo vario.
Punti salienti dello spazio ufficio:
* Stanze alte e luminose disponibili in diverse dimensioni
* Ampia area comune con cucina da condividere
* Uffici dotati di illuminazione a soffitto e preparati per la connessione in fibra ottica
* Ascensore dispo...
Dettagli immobile
- Disponibile dal
- Su accordo
- Superficie abitabile
- 34 m²
- Superficie utilizzabile
- 34 m²



