Spazio di archiviazione in affitto - Rue Peillonnex 36, 1225 Chêne-Bourg
Perché amerai questa proprietà
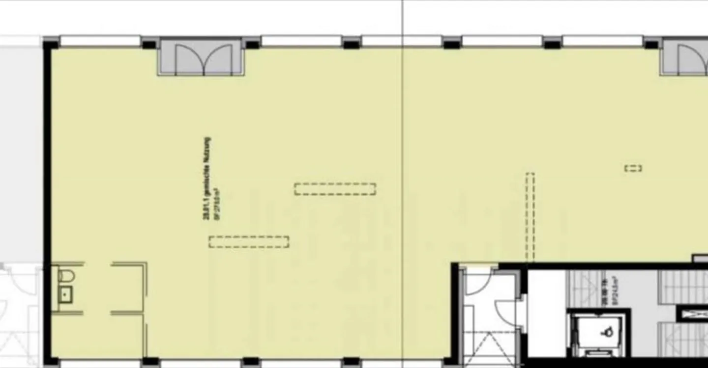
174m2 di spazio versatile
Accesso sicuro con ascensore
Vicino ai mezzi pubblici
Organizza una visita
Prenota una visita con maison.work oggi!
Edificio con ascensore e accesso sicuro, situato nel comune di Chêne Bourg, vicino ai mezzi pubblici e a tutti i servizi. I lavori di ristrutturazione sono in corso sull'edificio e dureranno fino all'inizio del 2025. Questa proprietà è composta da due spazi laboratorio, uno spazio ufficio, un'area cucina e servizi igienici. Visite su appuntamento con il concierge dell'edificio. Tutte le visite saranno dopo le 17:30.
Ripartizione dei costi
- Affitto netto
- CHF 3’725
- Costi aggiuntivi
- CHF 100
- Totale delle locazioni
- CHF 3’725
Dettagli immobile
- Disponibile dal
- Su accordo
- Superficie abitabile
- 174 m²
- Superficie utilizzabile
- 174 m²



