1 / 9

Spazio ufficio in affitto - Boulevard De L'arc-En-Ciel 36, 1030 Bussigny

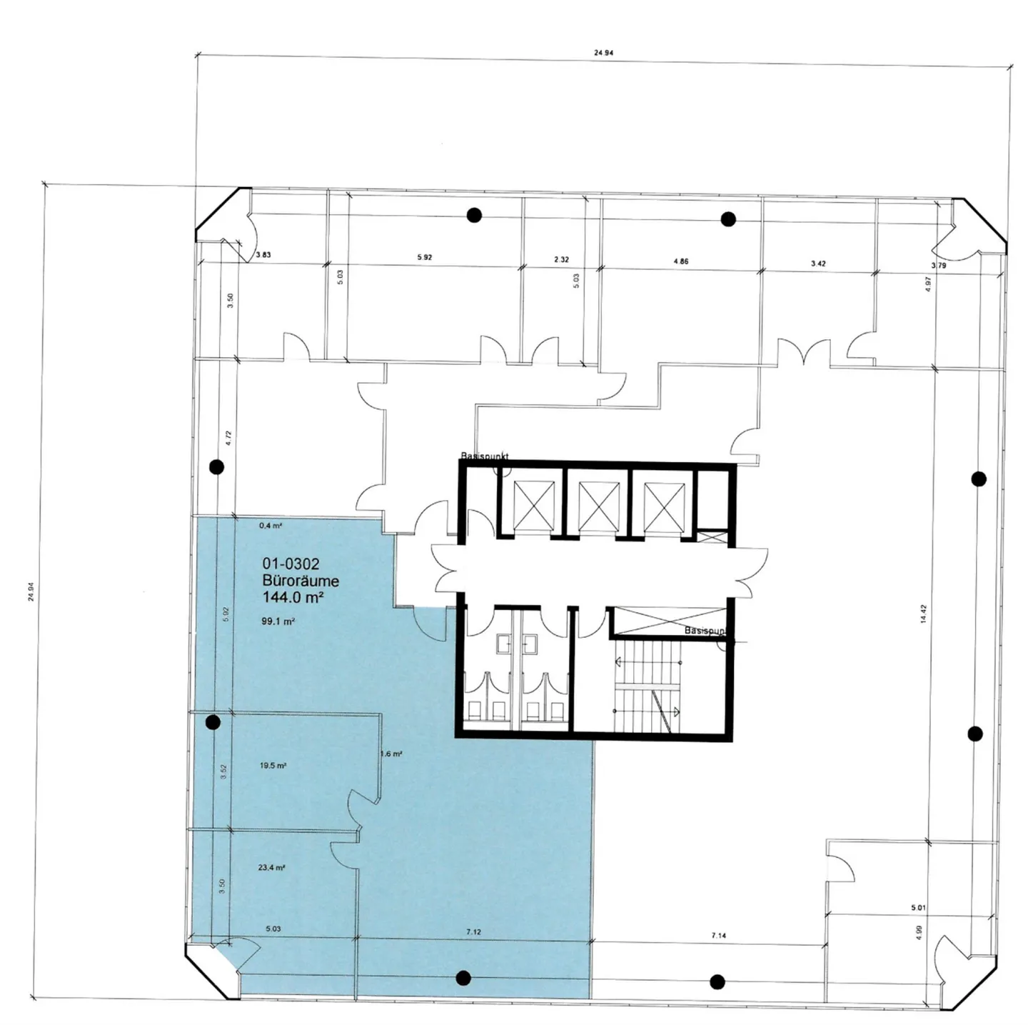
144 m² • 3° piano
CHF 2’280.-
CHF 190 m² / year

Perché amerai questa proprietà

Layout luminoso e modulare

Accesso veloce all'autostrada

Ampio parcheggio disponibile

Organizza una visita

Prenota una visita con Eric oggi!

Eric du Plessis
Vaudburo Sàrl
Questa descrizione è stata tradotta automaticamente da Tedesco.

Ultimo ufficio immediatamente disponibile di 144 m2, numerosi parcheggi e rapido accesso all'autostrada.

Ultimo piccolo ufficio immediatamente disponibile in questo edificio.

Posizione dei locali:

- Nel cuore della zona industriale: Migros, Coop, Mac Donald, Fust, Grand Optical, ecc.

- Solo 1 minuto dall'autostrada per le direzioni Ginevra, Berna, Friburgo, Martigny

- 10/15 minuti dal centro città di Losanna (auto/bus)

- 5 minuti dalle stazioni ferroviarie di Renens e Bussigny

- Linee di autobus 17 e 92, 1 minuto a piedi

Descrizione :

In un bel edificio amministrativo offriamo l'ultimo ufficio per af...

Dettagli immobile

Disponibile dal
07.04.2022
Superficie abitabile
144
Superficie utilizzabile
144

Agenzia

Vaudburo Sàrl
Indirizzo:Av.de la Gare 17, 1003, Lausanne
Ref: 4e181bce-9df5-11f0-89d7-069ae14c7a06

Località

Boulevard De L'arc-En-Ciel 36, 1030 Bussigny

Fonti