Spazio ufficio in affitto - Boulevard De L'arc-En-Ciel 36, 1030 Bussigny
Perché amerai questa proprietà
Situato in zona commerciale
Accesso facile alle autostrade
Layout flessibile e luminoso
Organizza una visita
Prenota una visita con Eric oggi!
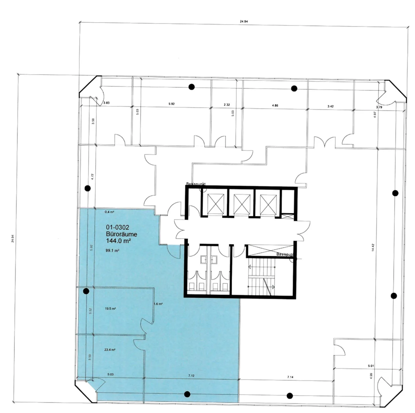
Ultimo piccolo ufficio immediatamente disponibile in questo edificio.
Posizione dei locali:
- Nel cuore della Zona Commerciale: Migros, Coop, Mac Donald, Fust, Grand Optical, ecc.
- A solo 1 minuto dall'autostrada per Ginevra, Berna, Friburgo, Martigny
- 10/15 minuti dal centro di Losanna (auto/bus)
- 5 minuti dalle stazioni di Renens e Bussigny
- Linee di autobus 17 e 92 a 1 minuto a piedi
Descrizione :
In un bel edificio amministrativo, vi offriamo l'ultimo ufficio in affitto immediatamente disponib...
Dettagli immobile
- Disponibile dal
- Su accordo
- Superficie abitabile
- 144 m²
- Superficie utilizzabile
- 144 m²



