Negozio in affitto - Dorfstrasse 34, 2545 Selzach
Perché amerai questa proprietà
Ristrutturato con area esterna
Ampio spazio di stoccaggio
Ottimo accesso ai mezzi pubblici
Organizza una visita
Prenota una visita con Sara oggi!
Gastronomia con area esterna
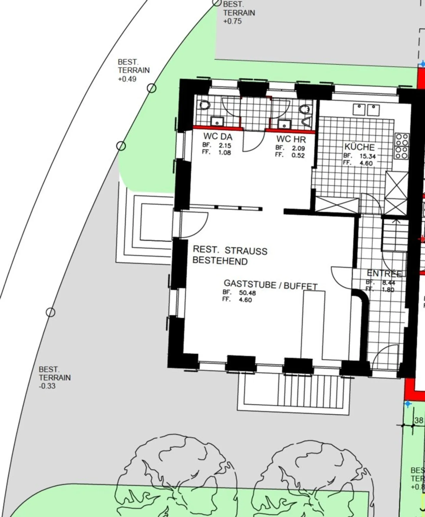
Affittiamo in una posizione privilegiata su appuntamento nel cuore di Selzach questo ristorante / caffè completamente ristrutturato e molto affascinante.
Il locale commerciale si trova al piano terra, con un'area di stoccaggio più grande nel seminterrato.
L'uso dei locali è versatile, grazie alla bella posizione angolare e all'area esterna, è possibile anche disporre i posti a sedere all'esterno.
Il complesso dispone di 16 posti auto a CHF 150.00 ciascuno nel garage sotterraneo e 3 posti auto a CHF...
Ripartizione dei costi
- Affitto netto
- CHF 1’450
- Costi aggiuntivi
- CHF 150
- Totale delle locazioni
- CHF 1’450
Dettagli immobile
- Disponibile dal
- Su accordo
- Superficie abitabile
- 73 m²
- Superficie utilizzabile
- 73 m²



