Spazio ufficio in affitto - Bernstrasse 34, 3072 Ostermundigen
Perché amerai questa proprietà
Layout uffici flessibili
Spazi luminosi con vista
Posizione centrale vicino ai trasporti
Organizza una visita
Prenota una visita con Tamò oggi!
Spazio ufficio / commerciale direttamente al 'Polso' a Ostermundigen
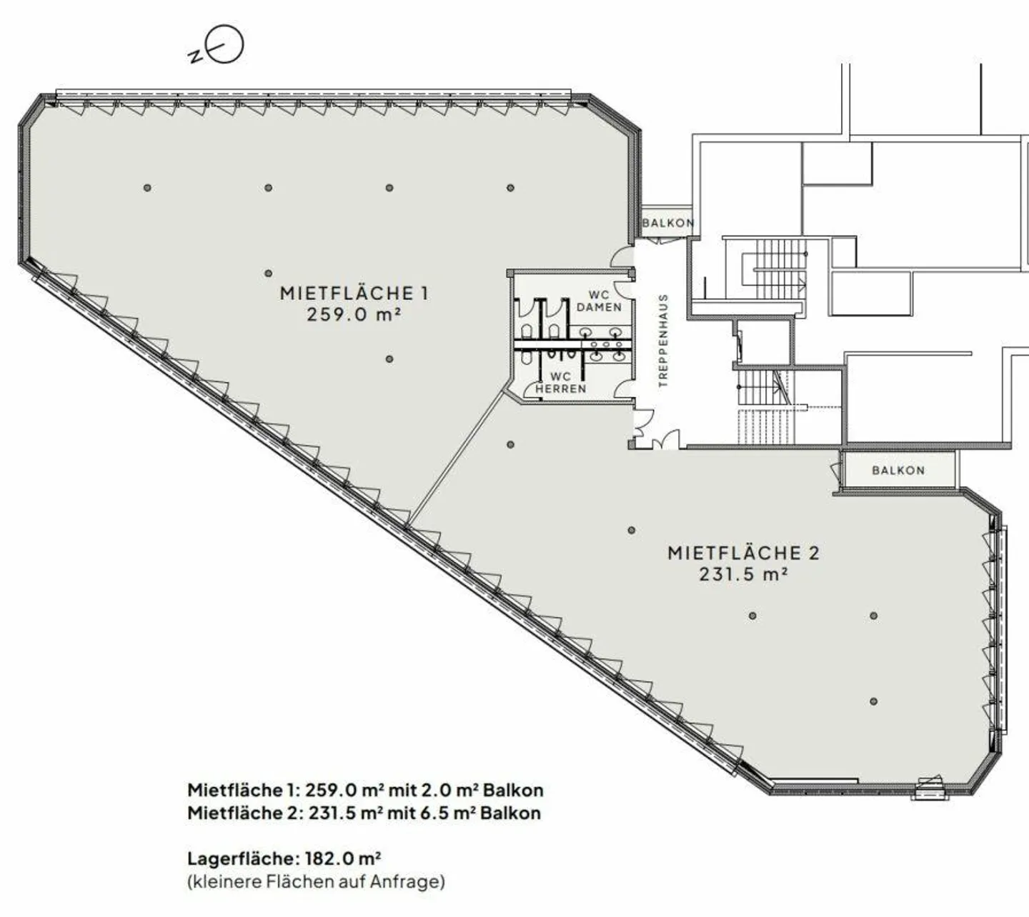
In Bernstrasse 34 a Ostermundigen, due spazi per uffici attraenti sono disponibili per l'affitto al 3° piano. Gli spazi sono adatti per PMI, amministrazioni, agenzie o concetti creativi e possono essere affittati singolarmente o insieme.
L'edificio commerciale ristrutturato nel 2023 offre stanze luminose, piani flessibili e un allestimento personalizzato per gli inquilini in costruzione grezza. L'inizio dell'affitto è possibile immediatamente.
Punti salienti a colpo d'occhio
- Superficie totale aff...
Dettagli immobile
- Disponibile dal
- Su accordo



