Spazio ufficio in affitto - Soodring 33, 8134 Adliswil
Perché amerai questa proprietà
Edificio certificato Minergie
Layout uffici flessibili
Accogliente terrazza sul tetto
Organizza una visita
Prenota una visita con Selene oggi!
La tua nuova sede: Centrale, moderna e pronta per essere abitata
A soli 500 metri dalla stazione ferroviaria di Sood Oberleimbach – con un collegamento diretto a Zurigo in 15 minuti – e in prossimità dell'ingresso dell'autostrada, si trova l'edificio per uffici <> in Soodring 33 ad Adliswil.
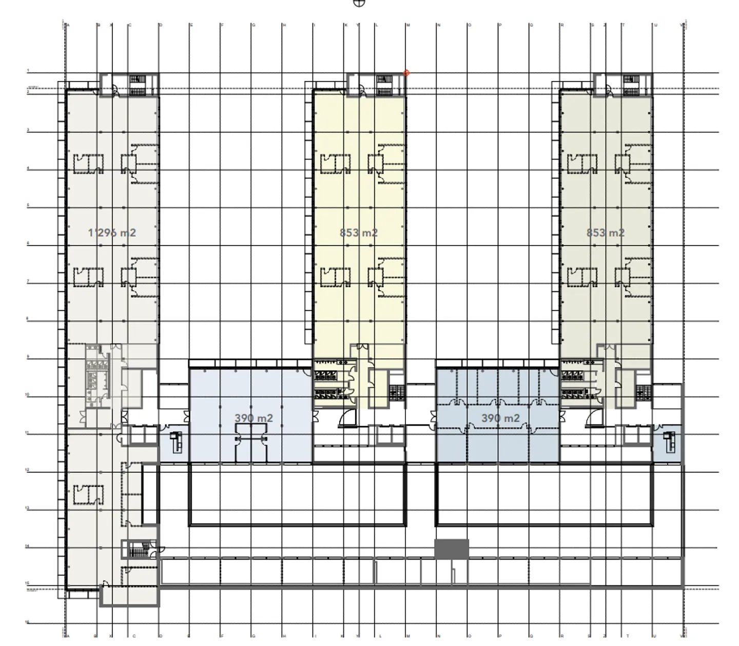
Con circa 3.800 m², l'edificio certificato Minergie offre spazi per uffici moderni e sviluppati, pronti per essere occupati immediatamente.
Gli spazi possono essere suddivisi individualmente, consentendo un utilizzo agile e un adattamento alle vostre esigenze. Anche l...
Dettagli immobile
- Disponibile dal
- Su accordo
- Anno di costruzione
- 2001
- Anno di ristrutturazione
- 2025
- Superficie abitabile
- 3800 m²
- Superficie utilizzabile
- 3800 m²



