Spazio ufficio in affitto - Quai Du Bas / Unterer Quai 31a, 2502 Biel/Bienne
Perché amerai questa proprietà
Cucina ben attrezzata
Layout flessibile
Parcheggio disponibile
Organizza una visita
Prenota una visita con Andreas oggi!
Posizione tranquilla nel centro città
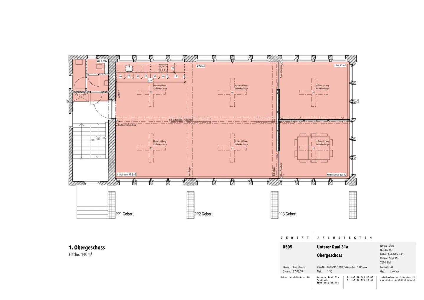
Vi offriamo uno spazio ufficio attraente nel centro città. I locali comprendono:
* Una cucina ben attrezzata
* 2 stanze separate accanto all'ampia area principale
* Un WC separato
* Un pratico ripostiglio
* 1 posto auto può essere affittato separatamente
* Un piccolo archivio per i vostri documenti
Due stanze possono essere separate in modo flessibile dall'ampio open space tramite porte scorrevoli, dandovi la possibilità di progettare lo spazio secondo le vostre esigenze.
Approfittate di questa opportun...
Dettagli immobile
- Disponibile dal
- 01.03.2025
- Stanze
- 3
- Superficie abitabile
- 140 m²




