Spazio di archiviazione in affitto - Weinfelderstrasse 31, 8580 Amriswil
Perché amerai questa proprietà
Spazio di stoccaggio pulito
Accesso diretto al garage
Posto auto incluso
Organizza una visita
Prenota una visita con Risi oggi!
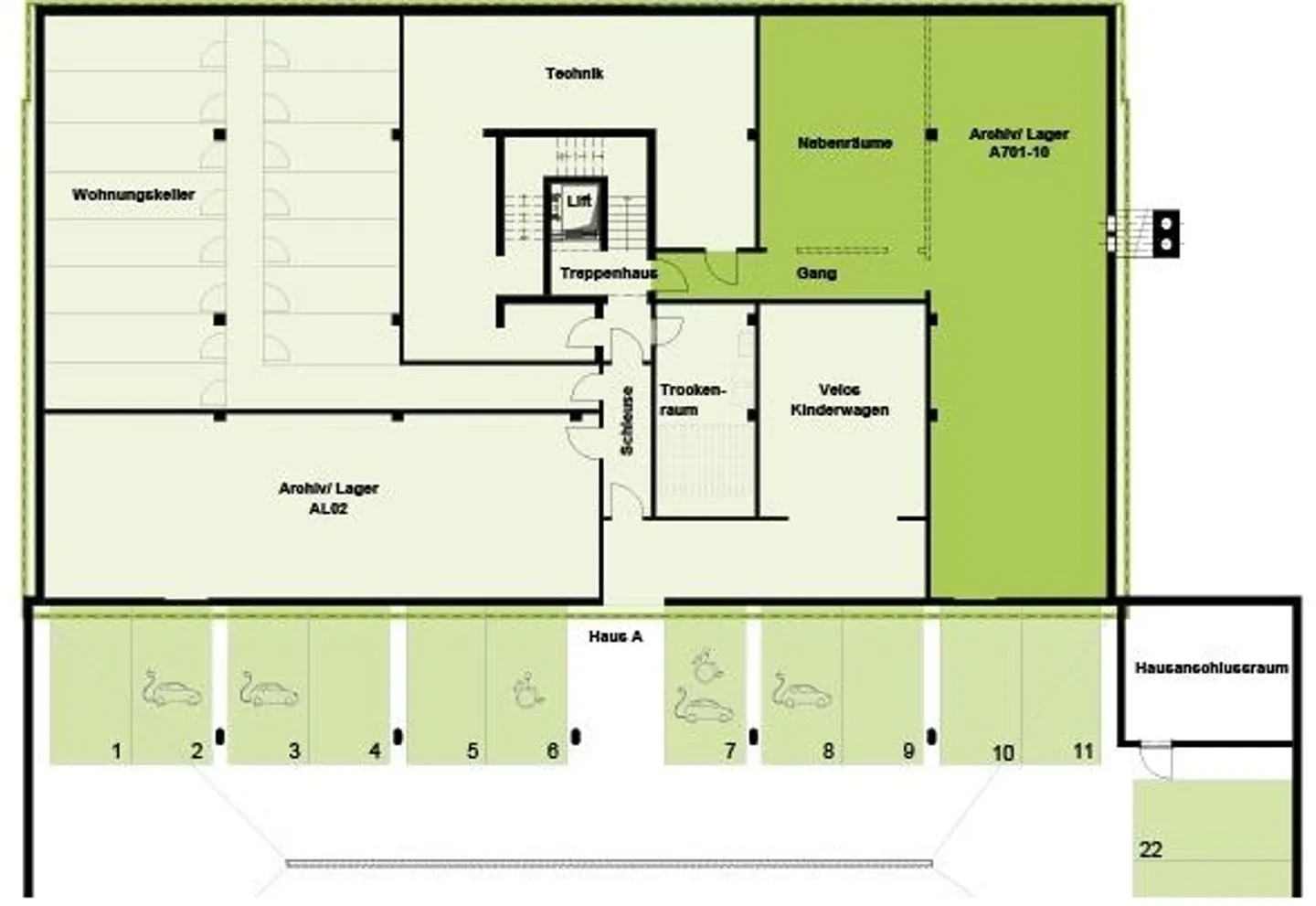
Stanza di stoccaggio nel seminterrato 1 A701-10
Spazio di archiviazione/immagazzinaggio pulito e asciutto nel seminterrato dell'edificio residenziale/commerciale Weinfelderstrasse 31.
Accessibilità diretta tramite il garage sotterraneo. Altezza massima di passaggio 2,05 m.
Accesso con auto e furgoni H1 tramite il garage sotterraneo possibile. Accesso ai furgoni ad alto tetto e ai camion solo fino alla rampa del garage sotterraneo.
Sistema di ventilazione e elettricità disponibili. Nessuna luce naturale.
Lavello con acqua calda/fredda disponibile.
Ripartizione dei costi
- Affitto netto
- CHF 970
- Costi aggiuntivi
- CHF 70
- Totale delle locazioni
- CHF 970
Dettagli immobile
- Disponibile dal
- Su accordo
- Anno di costruzione
- 2017



