Spazio di archiviazione in affitto - Seerosenweg 3, 6403 Küssnacht am Rigi
Perché amerai questa proprietà
Accesso facile con ascensore
Camere spaziose di 85m²
Posizione centrale
Organizza una visita
Prenota una visita con Stocker oggi!
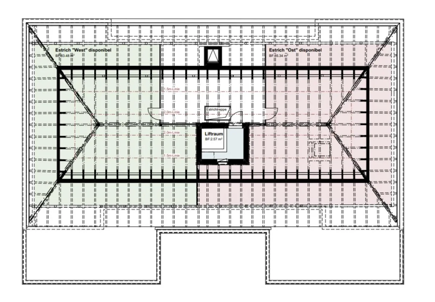
Magazzino nel centro di Küssnacht
Magazzino a Küssnacht am Rigi
A partire dal 1 aprile 2026, affittiamo due magazzini di circa 85m2 nel sottotetto dell'edificio residenziale in Seerosenweg 3, Küssnacht am Rigi. L'ascensore ti porta al 4° piano. Da lì, puoi raggiungere i due magazzini tramite la scala del sottotetto.
Se hai domande o sei interessato, saremo felici di sentirti.
Dettagli immobile
- Disponibile dal
- Su accordo



