Grande magazzino in affitto - Rue Plantour 3, 1860 Aigle
Perché amerai questa proprietà
Posizione centrale ideale
Spazio personalizzabile di 96 m2
Alta visibilità per il commercio
Organizza una visita
Prenota una visita con Elodie oggi!
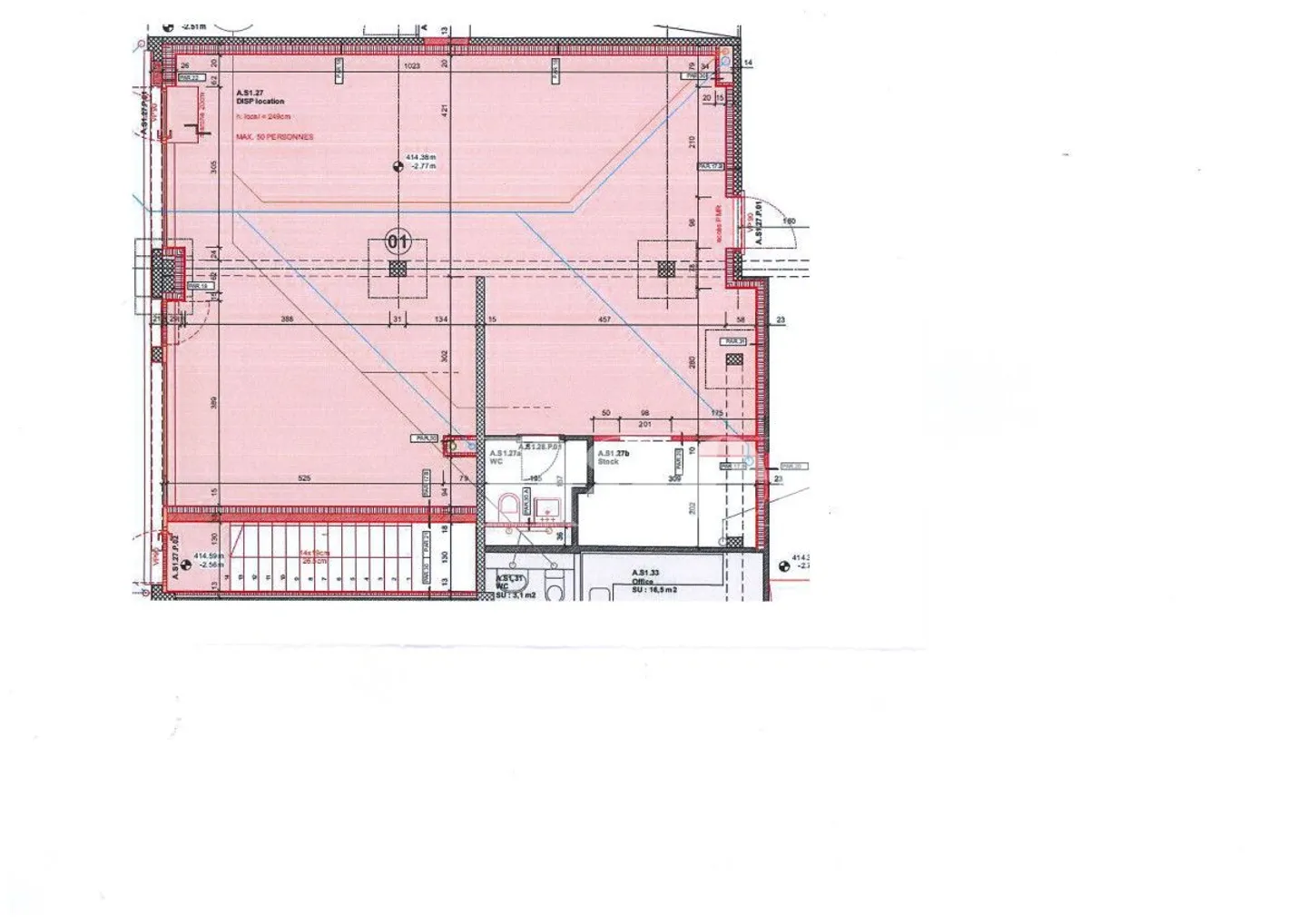
Situato nel centro della città del comune di Aigle, questo spazio commerciale al piano terra ha una superficie di 96 m2.
Lo spazio è composto da un'ampia stanza, un ripostiglio e un bagno.
I locali vengono affittati grezzi, le sistemazioni sono a discrezione dell'inquilino.
I locali sono disponibili immediatamente o come concordato.
Affitto Frs 1'680.- + Frs 104.- per spese, totale Frs 1'784.- lordo.
Ideale posizione, in prossimità immediata di altri negozi e con buona visibilità, questo spazio è per...
Ripartizione dei costi
- Affitto netto
- CHF 1’680
- Costi aggiuntivi
- CHF 104
- Totale delle locazioni
- CHF 1’784
Dettagli immobile
- Disponibile dal
- Su accordo
- Stanze
- 1
- Superficie abitabile
- 96 m²
- Superficie utilizzabile
- 96 m²




