Portico in affitto - Rue Des Charmilles 3, 1203 Genève
Perché amerai questa proprietà
Spazio aperto, layout personalizzabile
Ottima visibilità sulla strada
Facile accesso ai mezzi pubblici
Organizza una visita
Prenota una visita con Service oggi!
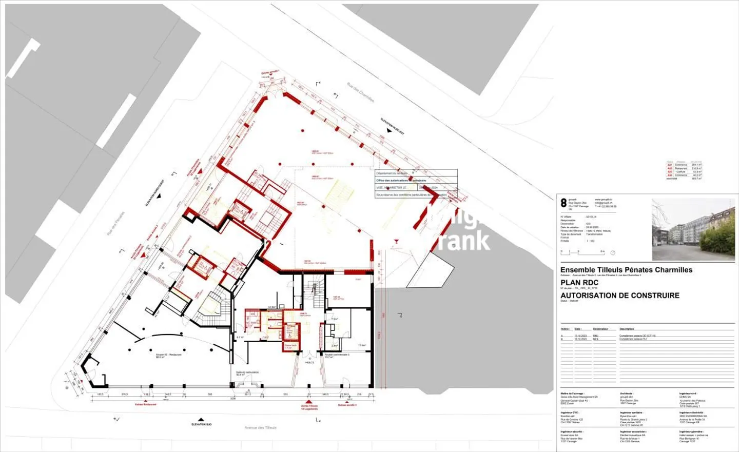
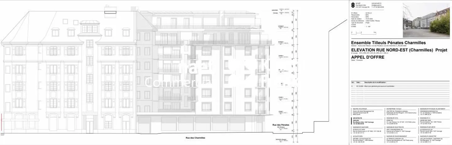
Arco commerciale di circa 260m2 in affitto - Quartiere delle Charmilles, Ginevra
Situato nel cuore del dinamico quartiere delle Charmilles a Ginevra, questo arco commerciale di circa 130 m² al piano terra rappresenta un'eccellente opportunità per stabilire o sviluppare la tua attività in un ambiente vivace e attraente.
Caratteristiche della proprietà:
- Superficie di circa 260 m²
- Spazio aperto, facilmente adattabile alle tue esigenze
- WC privato
- Bella vetrina su strada, che offre un'ottima visibilità
- Accesso facile grazie ai mezzi pubblici nelle immediate vicinanze
- Ambient...
Ripartizione dei costi
- Affitto netto
- CHF 10'930
- Costi aggiuntivi
- CHF 1'084
- Totale delle locazioni
- CHF 12'014
Dettagli immobile
- Disponibile dal
- Su accordo
- Superficie abitabile
- 260 m²
- Superficie utilizzabile
- 260 m²




