Commerciale in affitto - Poststrasse 3, 3400 Burgdorf
Perché amerai questa proprietà
Vetrina molto visibile
Opzioni di affitto flessibili
Vicino alla stazione
Organizza una visita
Prenota una visita con Peer oggi!
POSIZIONE TOP - LA TUA OCCASIONE PER RETAIL O SERVIZIO
Area di vendita, commerciale e di servizio attraente direttamente alla stazione di Burgdorf
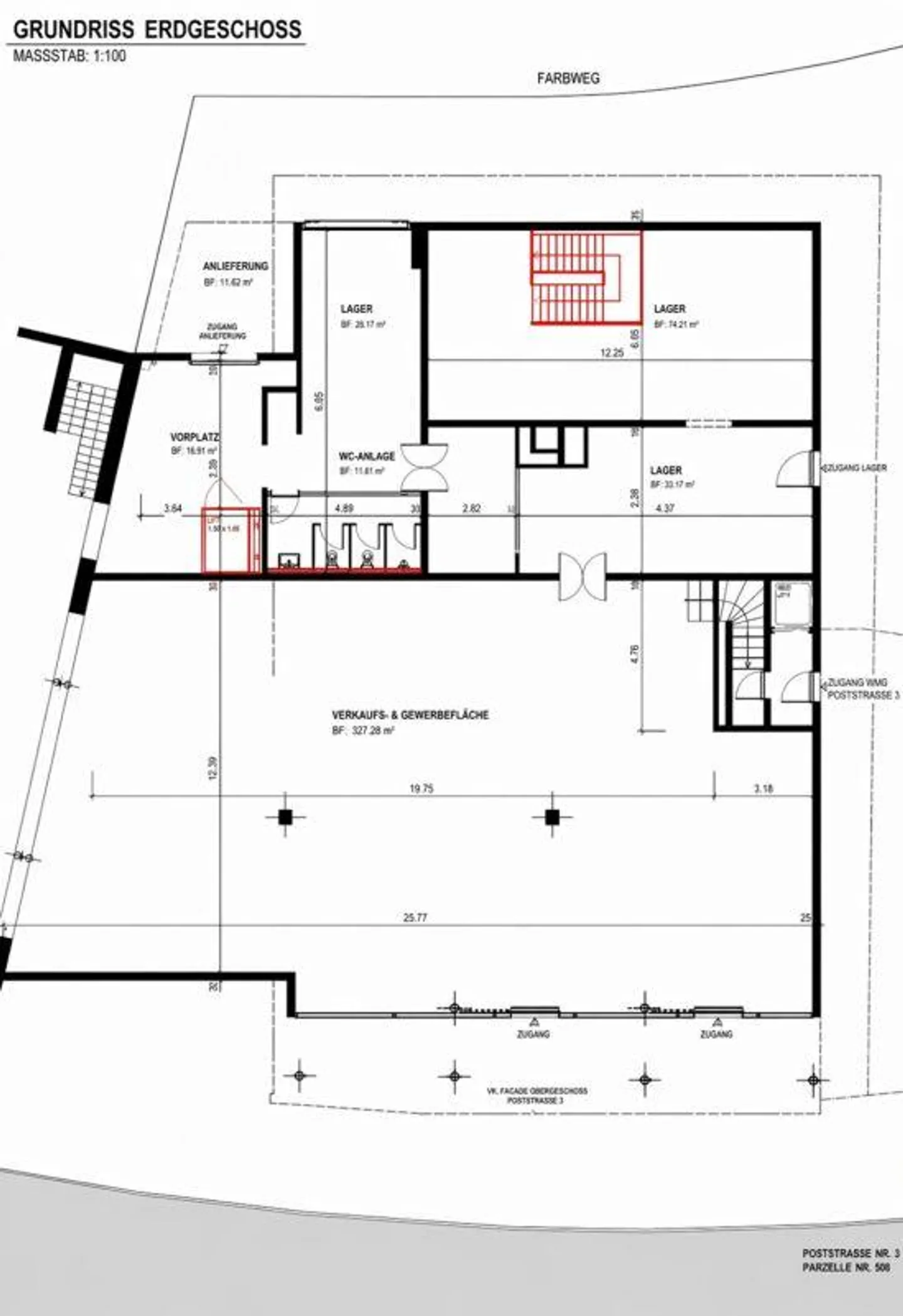
In una posizione centrale e molto frequentata in Poststrasse 3 a Burgdorf, affittiamo un'area versatile al piano terra di circa 500 m² di superficie utile, di cui circa 307 m² con una generosa vetrina. L'area può essere affittata in totale o in parti. Sono disponibili spazi di stoccaggio aggiuntivi nel seminterrato come opzione.
La proprietà è idealmente adatta come area di vendita, ufficio, studio, area fi...
Dettagli immobile
- Disponibile dal
- Su accordo



