1 / 10

Spazio ufficio in affitto - Place Pury 3, 2000 Neuchâtel

6° piano
CHF 2’132.-
-

Perché amerai questa proprietà

Vista mozzafiato sulla città

Stanze spaziose e luminose

Accesso facile con ascensore

Organizza una visita

Prenota una visita oggi!

Questa descrizione è stata tradotta automaticamente da Francese.

Ufficio

Ufficio

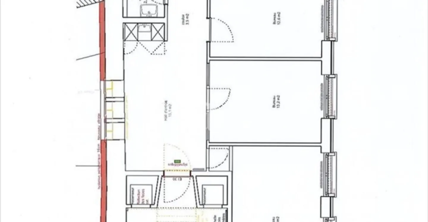
Magnifico spazio per uffici di circa 90 m² situato al 6° piano di un edificio di 7 piani nel cuore di Neuchâtel, vicino a negozi e mezzi pubblici. Questo spazio professionale offre una vista mozzafiato sulla città e sul lago.

Caratteristiche principali:

- 4,5 stanze spaziose e luminose

- Grandi finestre che offrono una vista panoramica sulla città e sul lago.

- Pavimento in moquette grigia e pareti bianche per un aspetto professionale

- Illuminazione a incasso nel soffitto per un comfort vis...

Dettagli immobile

Disponibile dal
Su accordo

Agenzia

Località

Place Pury 3, 2000 Neuchâtel

Fonti