Negozio in affitto - Konsumstrasse 3, 9403 Goldach
Perché amerai questa proprietà
Posizione ad alto traffico
Layout flessibile
Parcheggio per visitatori disponibile
Organizza una visita
Prenota una visita con Laurianne oggi!
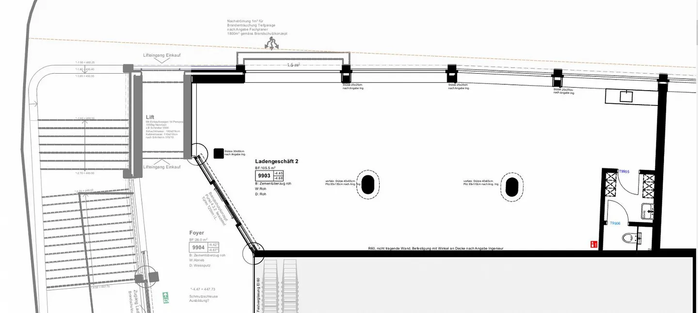
Avvia la tua attività! Spazio commerciale nel centro di Goldach!
Non puoi essere più centrale di così a Goldach. Il tuo nuovo spazio commerciale/negozio si trova direttamente alla stazione ferroviaria di Goldach ed è quindi molto frequentato. Banche, opzioni di shopping e ristoranti sono raggiungibili a piedi. Il collegamento autostradale verso San Gallo / Arbon è raggiungibile in pochi minuti in auto.
In Konsumstrasse 3 a Goldach, in un nuovo edificio attraente, il tuo nuovo spazio di atterraggio offre quanto segue:
Spazio finestrato in una posizione molto f...
Dettagli immobile
- Disponibile dal
- 24.03.2026
- Anno di costruzione
- 2023
- Superficie abitabile
- 105 m²
- Superficie utilizzabile
- 105 m²



