Spazio ufficio in affitto - Grauenstrasse 3, 9033 Untereggen
Perché amerai questa proprietà
Posizione centrale privilegiata
Scala artistica di design
Due ingressi comodi
Organizza una visita
Prenota una visita con David oggi!
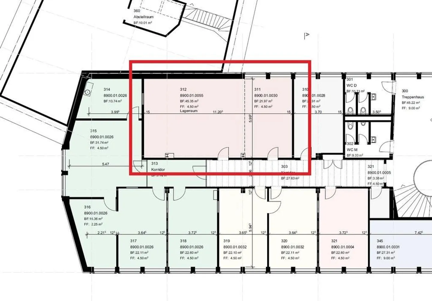
La tua attività in una posizione privilegiata!
L'area commerciale si trova in una posizione privilegiata nel centro della città di San Gallo. La stazione centrale è raggiungibile in soli tre minuti a piedi. L'autostrada è anche nelle vicinanze. La scala rappresentativa è dotata di un oggetto d'arte.
Il tuo nuovo ufficio ti offre i seguenti vantaggi:
- Illuminazione
- Moquette in lana
- 2 ingressi
- Uso condiviso dei servizi igienici nella scala
- La superficie totale include l'area di traffico
- 2 ascensori
- nessun posto auto
Chiama. Visita. Affitta...
Ripartizione dei costi
- Affitto netto
- CHF 1’312
- Costi aggiuntivi
- CHF 61
- Totale delle locazioni
- CHF 1’312
Dettagli immobile
- Disponibile dal
- Su accordo
- Anno di costruzione
- 1953



