Negozio in affitto - Davidstrasse 3, 9000 St. Gallen
Perché amerai questa proprietà
Ingresso privato per privacy
Grandi vetrine
Posizione centrale comoda
Organizza una visita
Prenota una visita con Livit oggi!
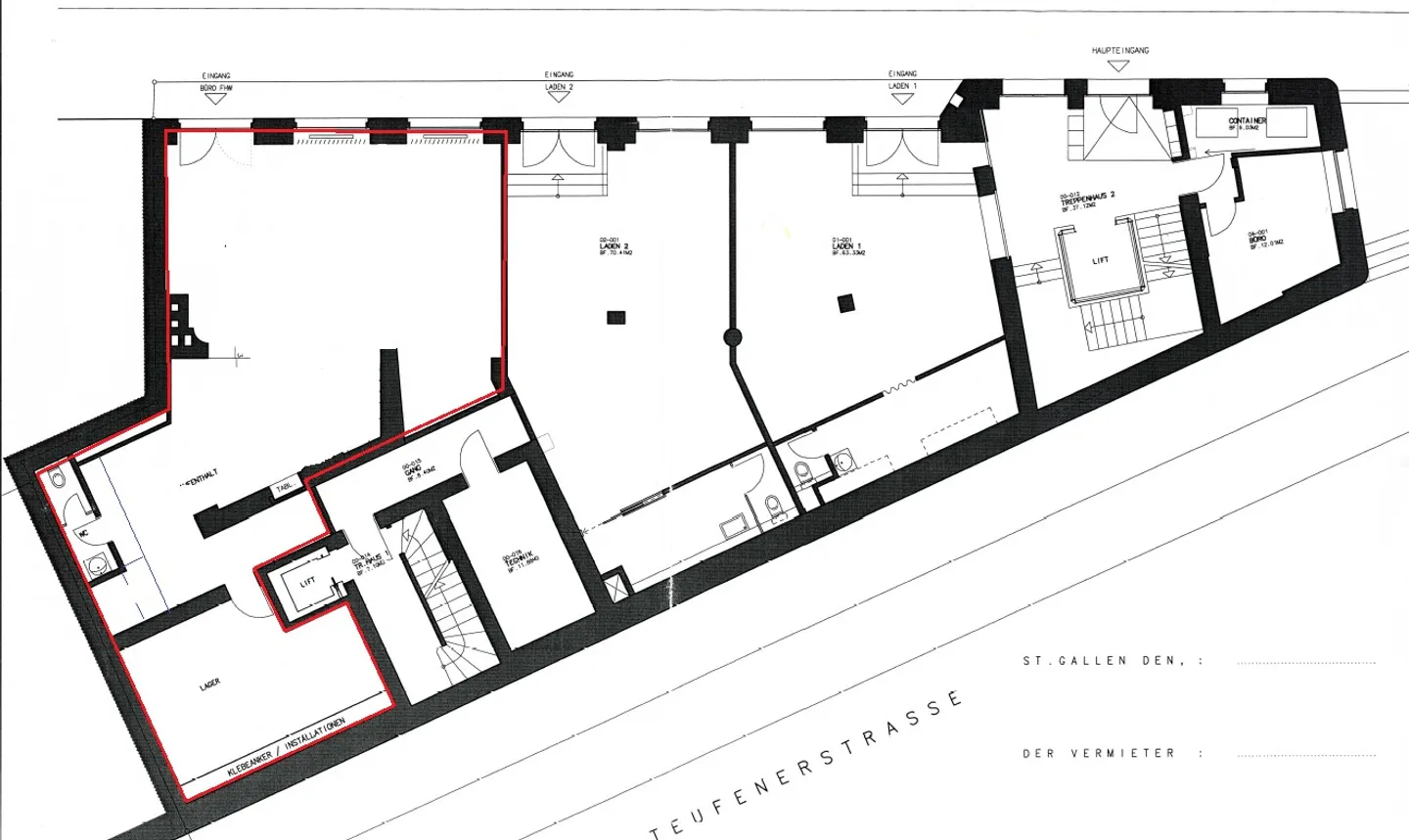
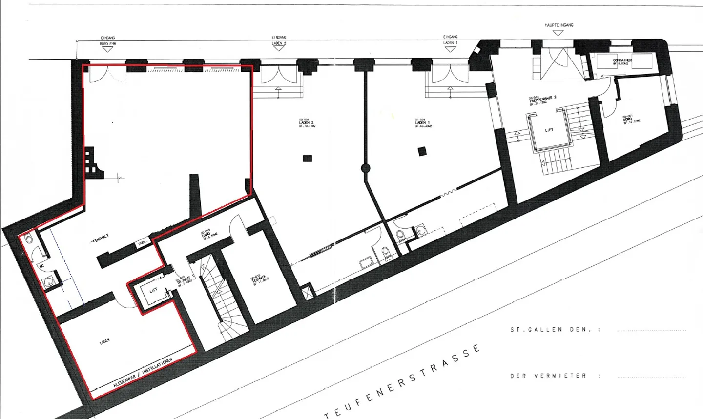
Affittiamo uno spazioso locale commerciale in Davidstrasse 3 a San Gallo.
La proprietà commerciale attraente si trova nel centro città ed è facilmente raggiungibile a piedi, con i mezzi pubblici e in auto.
Punti salienti dello spazio:
- ingresso privato
- ampie vetrine
- servizi igienici
- magazzino
Si prega di notare che i locali non possono essere utilizzati per un'attività di ristorazione.
Abbiamo suscitato il tuo interesse? Non vediamo l'ora di ricevere tue notizie.
Dettagli immobile
- Disponibile dal
- Su accordo
- Superficie abitabile
- 117 m²
- Superficie utilizzabile
- 117 m²



