Commerciale in affitto - Centralweg 3, 8910 Affoltern am Albis
Perché amerai questa proprietà
Posizione privilegiata vicino a Migros
Ottima visibilità e accesso
Ampio parcheggio disponibile
Organizza una visita
Prenota una visita con Mirjam oggi!
Commercio
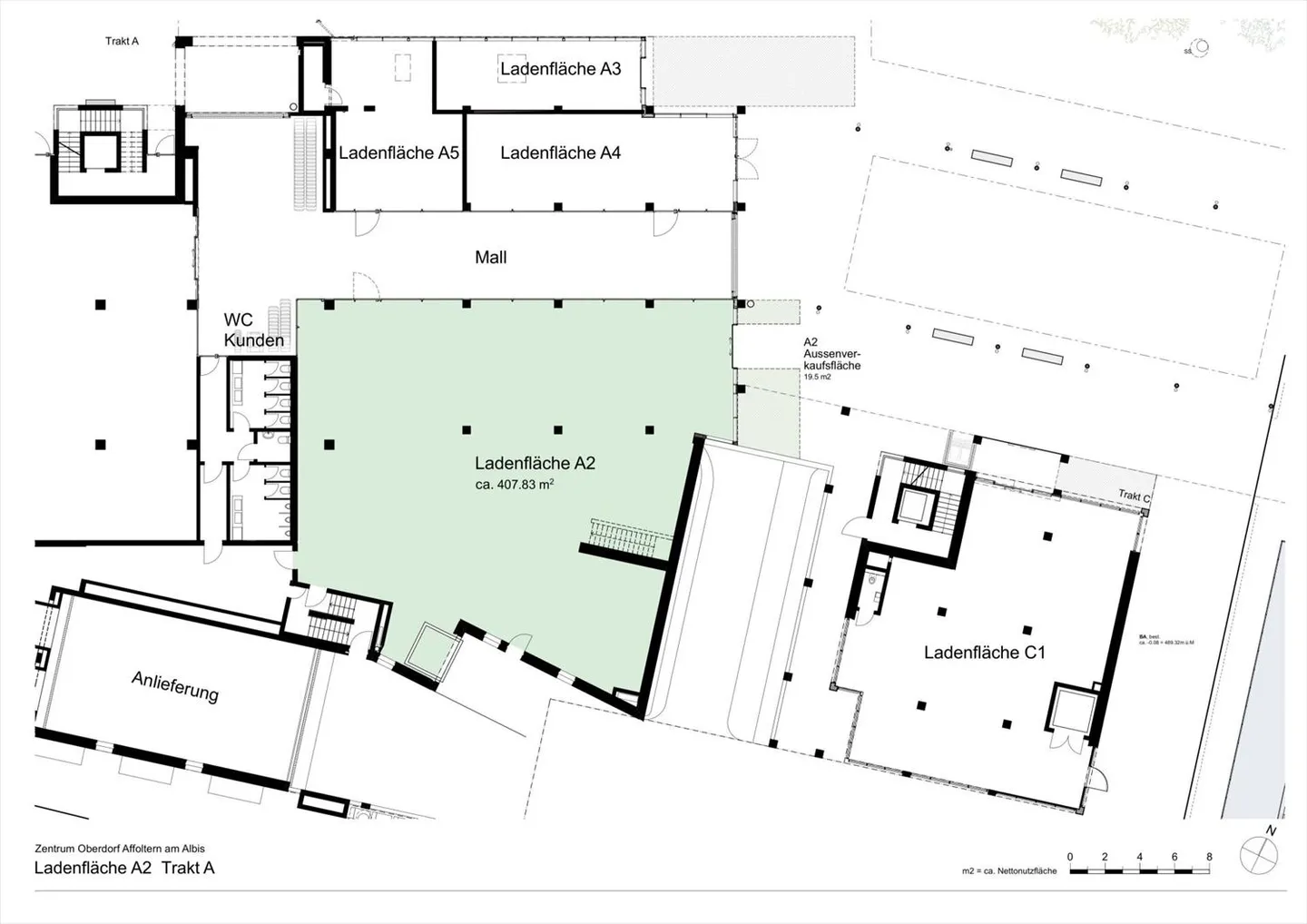
Spazio commerciale spazioso nel centro di Oberdorf, accanto a Migros e Lidl
Da febbraio 2026, uno spazio commerciale spazioso al piano terra con una grande vetrina sarà disponibile per l'affitto nel centro di Oberdorf, nel cuore di Affoltern am Albis.
Punti salienti del centro Oberdorf:
1. Buona posizione / area di attrazione attraente
2. Ottima visibilità dell'area
3. Mix di inquilini attraente nel centro (Migros, Lidl, Farmacia Medbase, Swisscom, Dr. Eyepoint, Gidor Coiffure, Coco Nails Beauty, Ma...
Dettagli immobile
- Disponibile dal
- Su accordo
- Superficie abitabile
- 410 m²



