Portico in affitto - Avenue Recordon 3, 1004 Lausanne
Perché amerai questa proprietà
Spazio modulare e funzionale
Layout interno personalizzabile
Collegamento idrico disponibile
Organizza una visita
Prenota una visita con Alan oggi!
Arcade
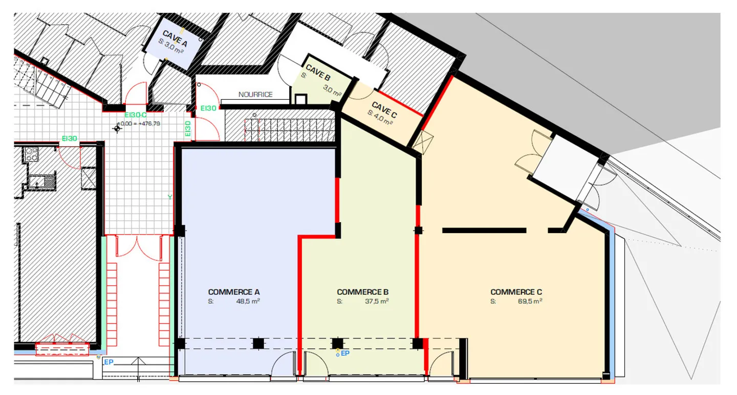
Spazio artigianale - showroom di 69,5 m² in affitto - Losanna
Situato in Chemin de Recordon 3 a Losanna, questo spazio artigianale/showroom di 69,5 m² offre un'area modulare e funzionale, ideale per attività di artigianato, presentazione o creazione. Consegnato grezzo, consente una disposizione personalizzata in base alle esigenze del futuro inquilino, con la possibilità di un collegamento e di un approvvigionamento idrico all'interno dello spazio.
Allestimenti
* Assegnazione: Artigianato / showr...
Dettagli immobile
- Disponibile dal
- Su accordo
- Superficie abitabile
- 69 m²



