Spazio ufficio in affitto - Via Cantonale 2a, 6928 Manno
Perché amerai questa proprietà
Costruzione ecoefficiente
Materiali di alta qualità
Ottima isolamento acustico
Organizza una visita
Prenota una visita oggi!
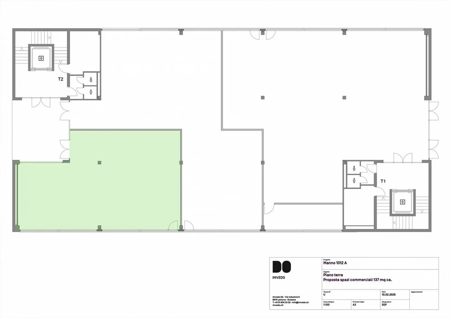
Ufficio / spazio commerciale, fronte strada - 137 mq
Disponibile da subito o per data da convenire, ufficio /negozio di 137 mq al piano terra dello stabile Manno 1012 A. Edificio interessante con le caratteristiche seguenti:
- costruzione ecoefficiente;
- materiali di alta qualità;
- ottimo isolamento termico e acustico;
- accessi comodi;
- posteggi coperti e esterni
L'edificio si trova in un punto nevralgico di Manno, nelle vicinanze dello svincolo autostradale Lugano nord e della galleria Vedeggio-Cassarate, in una zona commercialmente molto interessa...
Dettagli immobile
- Disponibile dal
- Su accordo
- Anno di costruzione
- 1997



