Studio medico in affitto - Heckenweg 29, 3270 Aarberg
Perché amerai questa proprietà
Camere luminose e spaziose
Ideale per terapie
Accesso comodo con ascensore
Organizza una visita
Prenota una visita con Eliane oggi!
Spazi commerciali attraenti nella migliore posizione ad aarberg
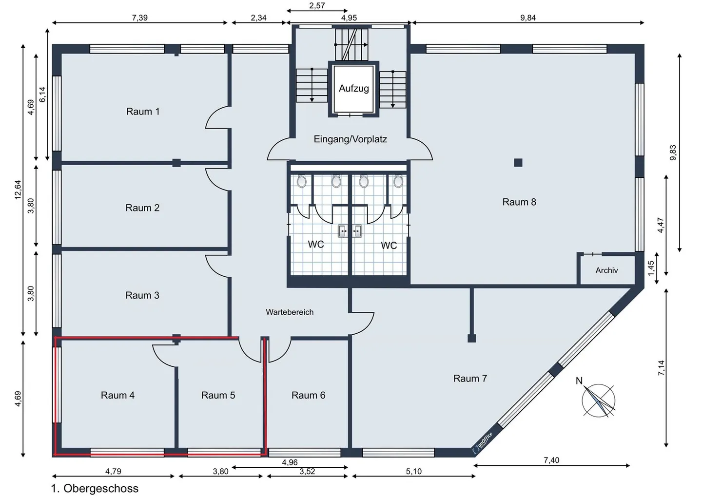
In un edificio commerciale ben tenuto in una posizione centrale e facilmente accessibile ad Aarberg, due spazi commerciali versatili ti aspettano. Grazie all'ideale collegamento con i mezzi pubblici e l'autostrada, la tua nuova posizione è ottimamente raggiungibile.
I tuoi vantaggi a colpo d'occhio:
* Spazi ampi, luminosi e soleggiati con una varietà di opzioni di utilizzo
* Gli spazi sono separati da un corridoio - ideale per due stanze di terapia o trattamento separate
* Situato al 1° piano e faci...
Ripartizione dei costi
- Affitto netto
- CHF 775
- Costi aggiuntivi
- CHF 75
- Totale delle locazioni
- CHF 775
Dettagli immobile
- Disponibile dal
- 01.01.2026
- Stanze
- 2
- Superficie abitabile
- 40 m²
- Superficie utilizzabile
- 40 m²




