Commerciale in affitto - Obstgartenstrasse 28, 8136 Gattikon
Perché amerai questa proprietà
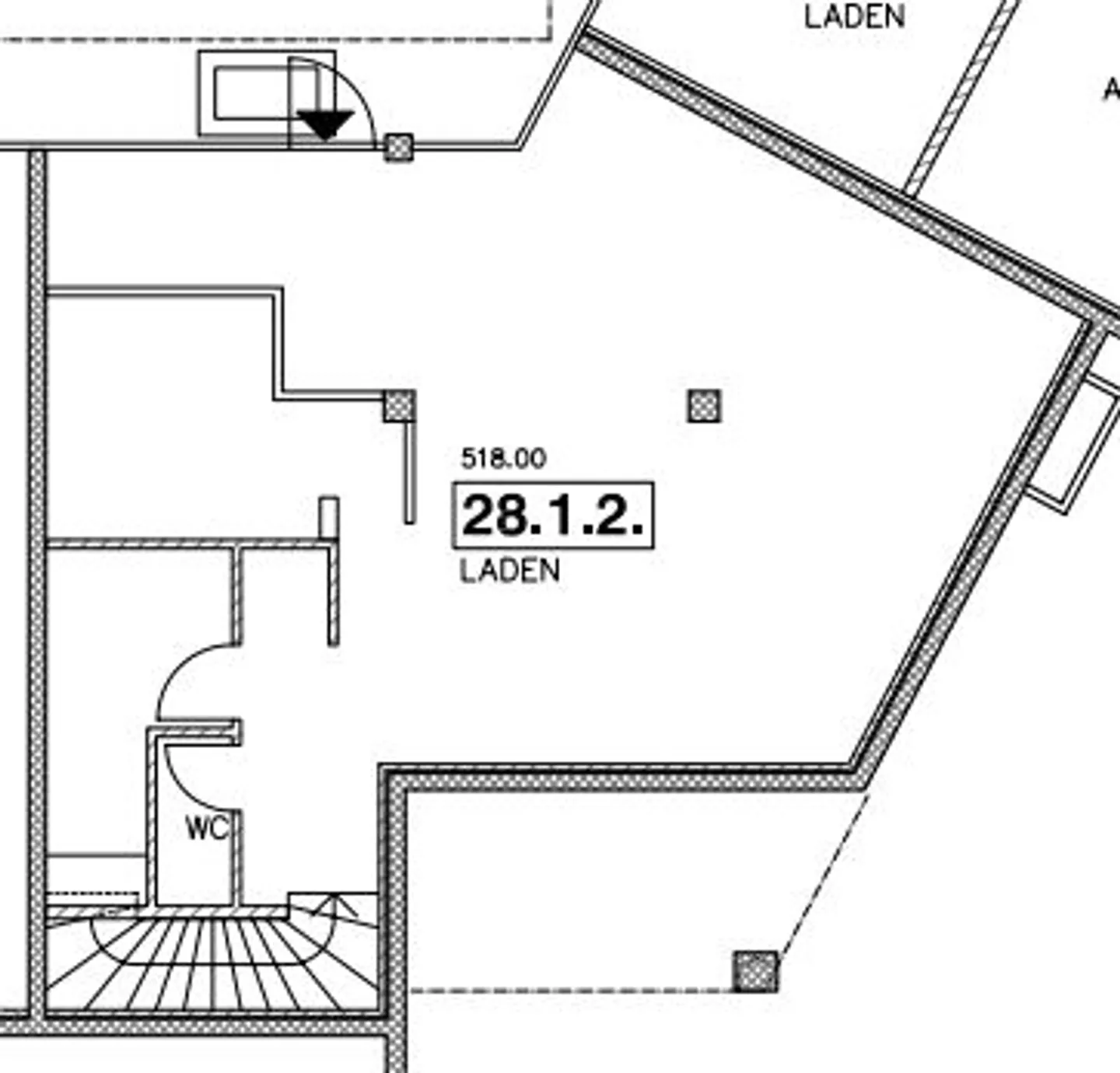
Negozio di 91m² nel centro del paese
Locale di deposito (8m²) al piano interrato
Vetrina
Organizza una visita
Prenota una visita oggi!
Commercio
Locali commerciali (91m2)
Nel centro del villaggio di Gattikon, affittiamo uno spazio commerciale con vetrina, incluso uno spazio di stoccaggio, a partire dal 1 febbraio 2026 o su accordo.
Lo spazio commerciale è attrezzato come segue:
- Superficie di circa 91 m2
- Accesso diretto al magazzino nel seminterrato di circa 8 m2
- Toilette disponibile al piano terra
- Possibilità di installare un angolo cottura
Saremmo felici di mostrarvi questo attraente spazio commerciale nel cuore di Gattikon.
Abbiamo...
Dettagli immobile
- Disponibile dal
- Su accordo
- Superficie abitabile
- 91 m²



