Negozio in affitto - Avenue Du Mont-Blanc 28, 1196 Gland
Perché amerai questa proprietà
Luminoso con grandi finestre
Posizione centrale e visibile
Accesso a livello del suolo
Organizza una visita
Prenota una visita con Jennifer oggi!
Spazio commerciale a gland
GLAND – Spazio commerciale luminoso e versatile
Ideale posizione nel cuore di Gland, vicino alle principali vie di comunicazione e ai mezzi pubblici, questo spazio commerciale beneficia di una posizione privilegiata che offre una buona visibilità.
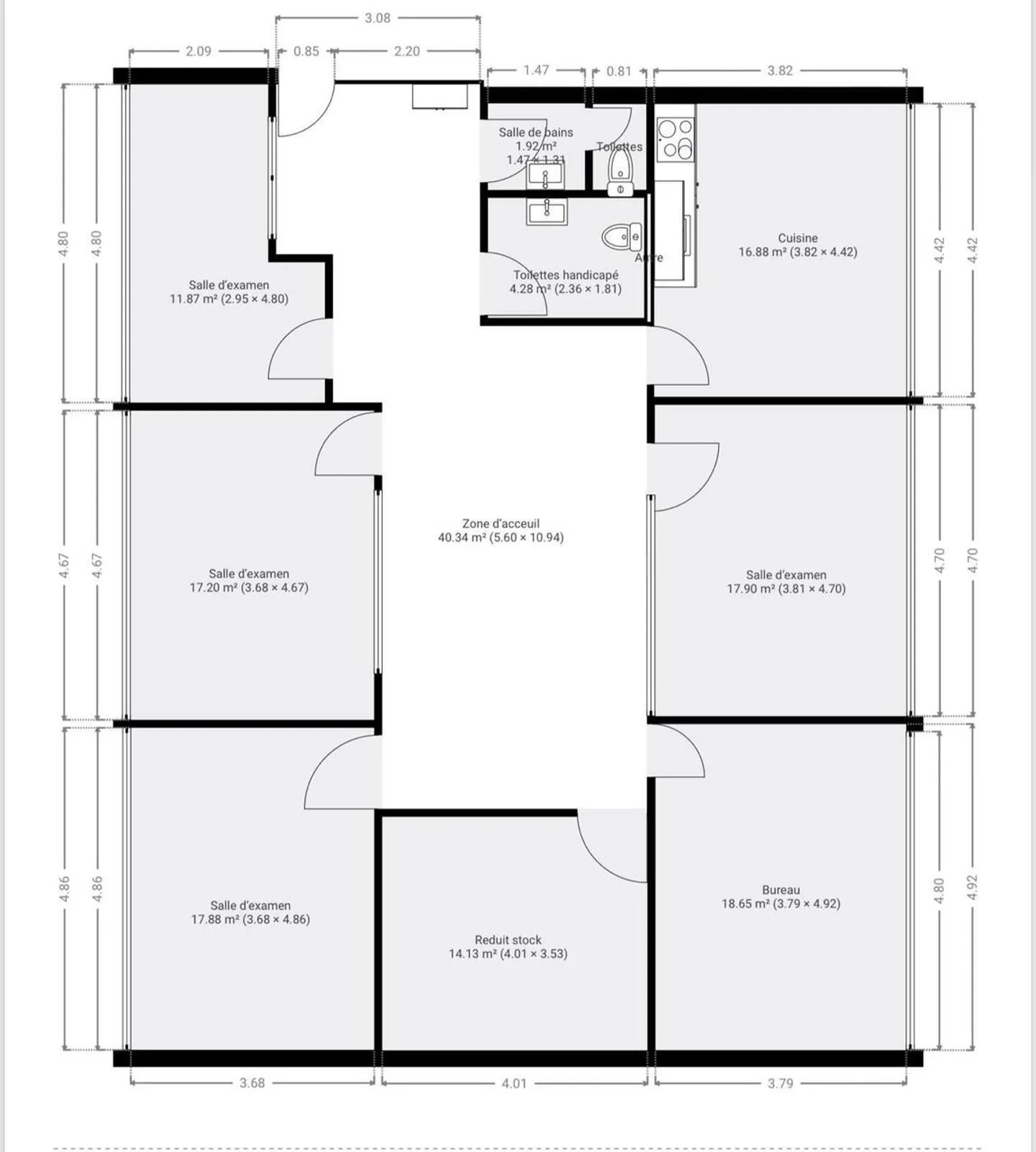
Con una superficie di circa 168 m2, è perfettamente adatto per un ufficio, uno studio, un laboratorio o un piccolo negozio.
Lo spazio è composto da diversi uffici separati, una sala principale modulabile, una cucina, 1 wc, 1 wc per persone con mobilità...
Ripartizione dei costi
- Affitto netto
- CHF 3’350
- Costi aggiuntivi
- CHF 450
- Totale delle locazioni
- CHF 3’350
Dettagli immobile
- Disponibile dal
- Su accordo
- Stanze
- 10
- Anno di ristrutturazione
- 2023
- Superficie abitabile
- 168 m²
- Superficie utilizzabile
- 168 m²



