Spazio di archiviazione in affitto - Kasernenstrasse 27, 3013 Bern
Perché amerai questa proprietà
Ideale per stoccaggio o artigianato
Dotato di luce e prese
Posizione comoda nel seminterrato
Organizza una visita
Prenota una visita con Liana oggi!
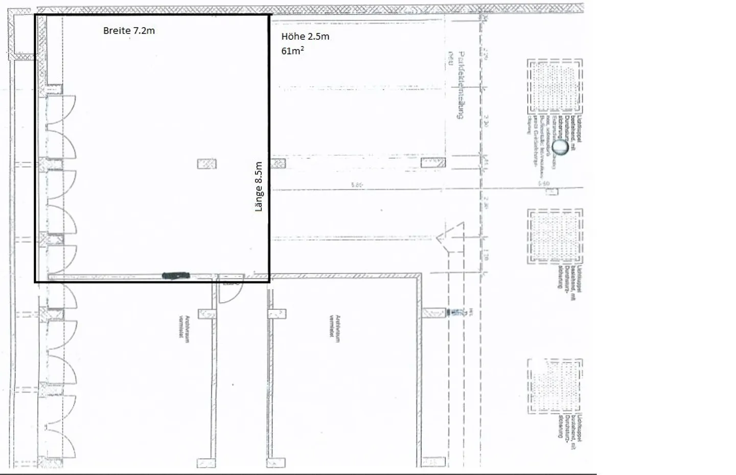
Spazioso spazio di stoccaggio
Affittiamo un locale di stoccaggio nel seminterrato di un edificio commerciale immediatamente o su appuntamento.
La grande stanza è adatta come magazzino o laboratorio. È dotato di luce e presa di corrente.
Il canone lordo è di CHF 762.10 (CHF 705.00 + 8.1% IVA).
Abbiamo suscitato il tuo interesse? Attraverso la funzione di richiesta di contatto online, puoi ottenere informazioni sulle possibilità di visita.
Ripartizione dei costi
- Affitto netto
- CHF 705
- Costi aggiuntivi
- CHF 65
- Totale delle locazioni
- CHF 705
Dettagli immobile
- Disponibile dal
- 30.01.2026
- Superficie abitabile
- 62 m²
- Superficie utilizzabile
- 62 m²



