Spazio ufficio in affitto - Rue De Saint-Jean 26, 1203 Genève
Perché amerai questa proprietà
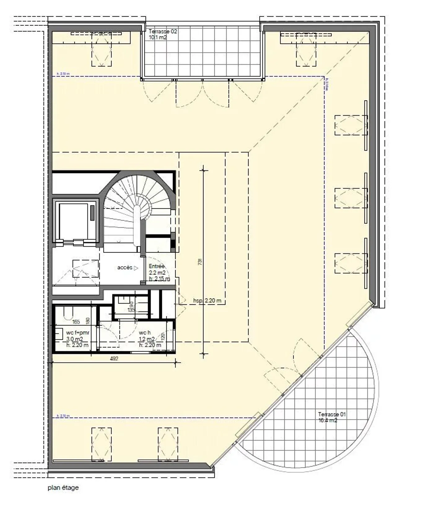
Ampio spazio aperto luminoso
Due terrazze spaziose
Altezza soffitto di 4,30 m
Organizza una visita
Prenota una visita con CI oggi!
Ideale posizione: questo edificio è perfettamente servito dai mezzi pubblici, con la strada di Saint-Jean a soli 10 minuti dall'aeroporto e 5 minuti dalla stazione Cornavin.
Gli uffici includono:
- Un ampio open space modulabile a piacere
- 2 terrazze spaziose
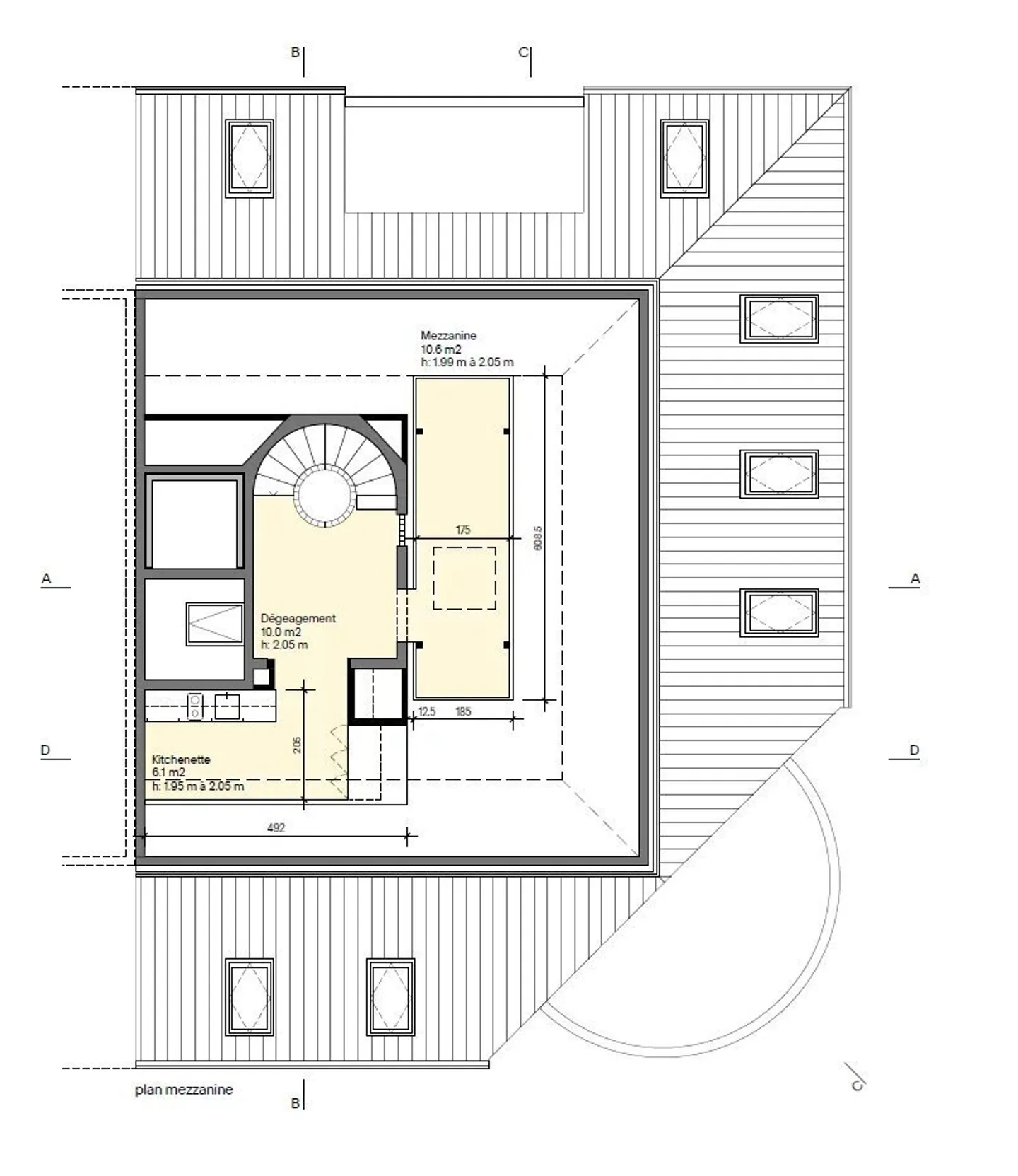
- 1 angolo cottura
- 2 servizi igienici
Il piano si distingue per un ampio spazio sotto il tetto, che offre un'altezza massima di 4,30 m al centro.
L'ingresso avviene attraverso il centro dello spazio, sotto una mezza pianta accessibile tramite u...
Dettagli immobile
- Disponibile dal
- Su accordo
- Superficie abitabile
- 141 m²

