Spazio ufficio in affitto - Neugasse 26, 9000 St. Gallen
Perché amerai questa proprietà
Negozio spazioso al piano terra
Infrastruttura moderna
Posizione centrale nella città vecchia
Organizza una visita
Prenota una visita con Nadja oggi!
Spazio commerciale a san gallo
Questo spazio commerciale si trova attualmente in uno stato non ristrutturato. Al momento della firma del contratto, verrà effettuata una ristrutturazione secondo la visualizzazione pubblicata dalla proprietà. Alcuni aspetti possono essere determinati dall'inquilino.
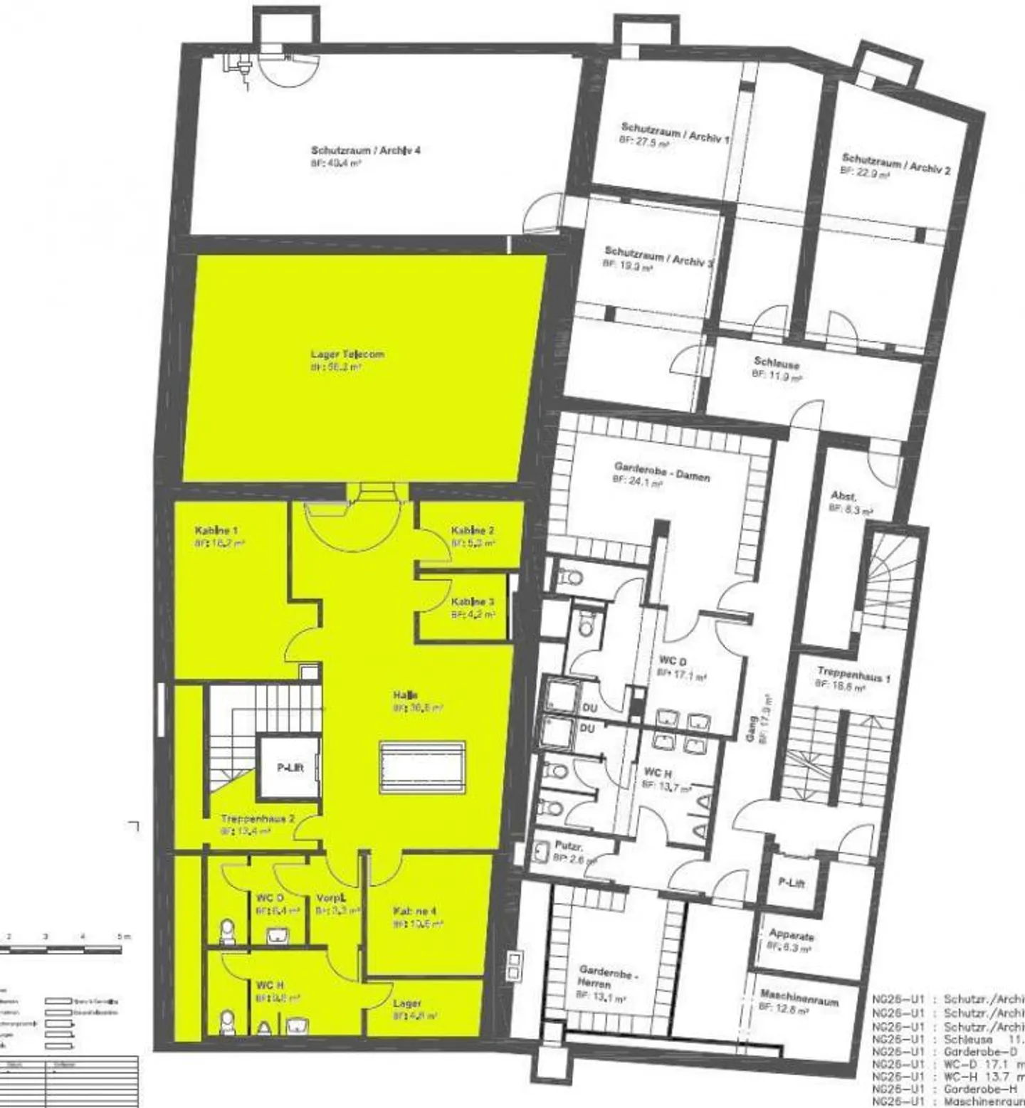
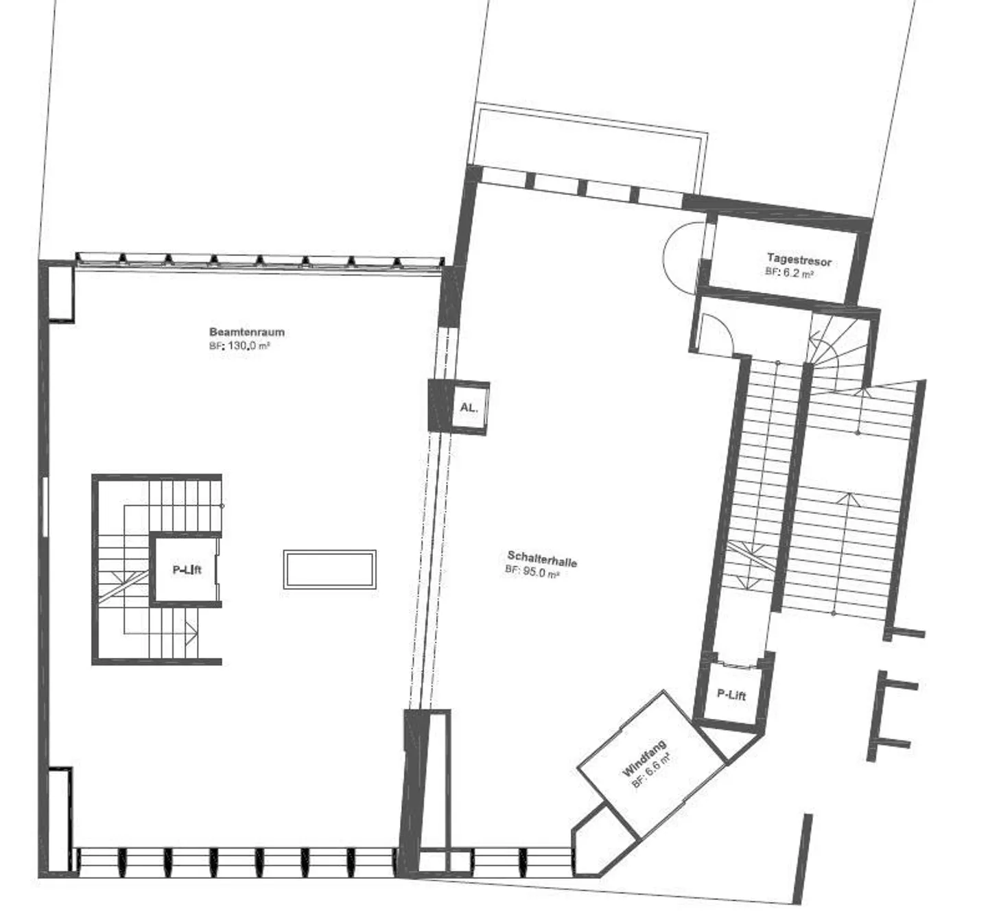
Lo spazio commerciale in Neugasse 26 a San Gallo è composto da un'area vendita al piano terra di 237m² e da un'area di stoccaggio o ufficio nel 1° seminterrato di 157m². Le condizioni di affitto per le aree disponibili sono le seguen...
Dettagli immobile
- Disponibile dal
- Su accordo



