Spazio ufficio in affitto - Neugasse 26, 9000 St. Gallen
Perché amerai questa proprietà
Posizione centrale a St. Gallen
Ascensori moderni per accesso facile
Opzioni di trasporto pubblico nelle vicinanze
Organizza una visita
Prenota una visita con Rebekka oggi!
Il tuo ufficio in una posizione centrale
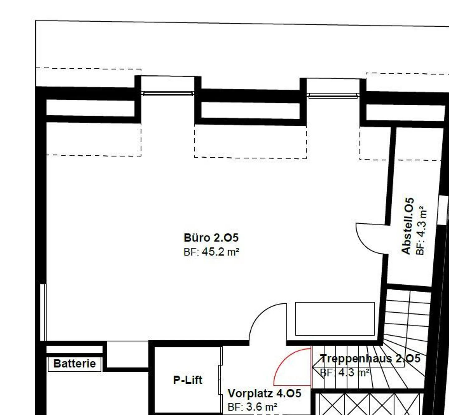
L'edificio per uffici e attività commerciali si trova in Neugasse 26, nel cuore della città vecchia di San Gallo, in una zona pedonale attraente e rappresentativa. Un totale di 865 m² di spazio per uffici e commerciali netti è disponibile su 5 piani. 2 ascensori garantiscono collegamenti brevi e percorsi di comunicazione tra i vari reparti. L'accessibilità dell'edificio per uffici e attività commerciali è ideale per i dipendenti e i clienti, poiché la stazione centrale di San Gallo è raggiungibi...
Ripartizione dei costi
- Affitto netto
- CHF 1’195
- Costi aggiuntivi
- CHF 250
- Totale delle locazioni
- CHF 1’195
Dettagli immobile
- Disponibile dal
- Su accordo



