Spazio ufficio in affitto - Dorfstrasse 25, 8630 Rüti ZH
Perché amerai questa proprietà
Posizione centrale vicino ai trasporti
Ex ufficio esecutivo
Parcheggio disponibile in loco
Organizza una visita
Prenota una visita con Interessenten oggi!
Spazio per ufficio - studio in affitto in una posizione centrale a Rüti
- Situato nel centro di Rüti vicino alla stazione ferroviaria, alla fermata dell'autobus e ai negozi / ufficio postale
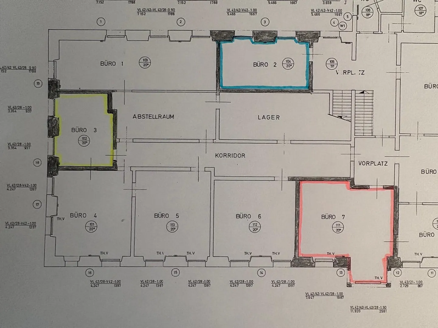
- La sala pratica in affitto si trova al 1° piano ed era l'ex ufficio del direttore dell'azienda situata nell'edificio
- Affittiamo anche i seguenti uffici allo stesso piano: Ufficio 2 contrassegnato in blu sulla pianta e Ufficio 3 contrassegnato in giallo sulla pianta
- Il bagno si trova allo stesso piano
- I posti auto possono essere affittati separatamente, si trovano nelle vicin...
Ripartizione dei costi
- Affitto netto
- CHF 695
- Costi aggiuntivi
- CHF 155
- Totale delle locazioni
- CHF 695
Dettagli immobile
- Disponibile dal
- Su accordo



