Spazio ufficio in affitto - Route De Renens 24, 1008 Prilly
Perché amerai questa proprietà
Accessibile tramite ascensore
Spazio flessibile da 155 m²
Posizione ideale vicino all'autostrada
Organizza una visita
Prenota una visita oggi!
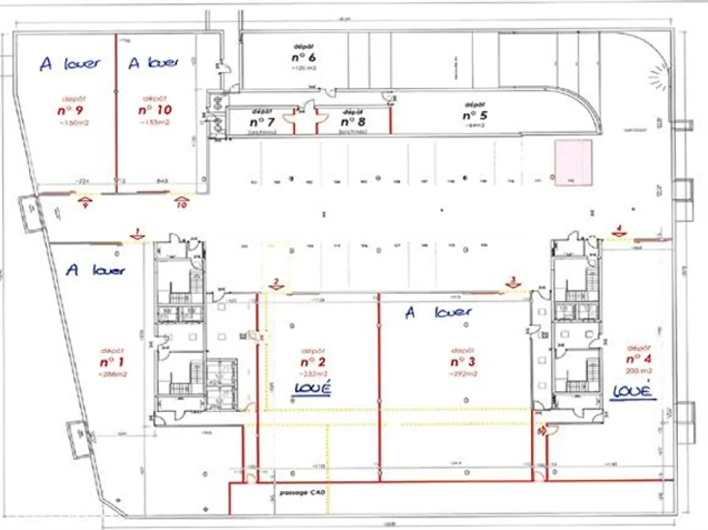
Conserva i tuoi archivi e beni nei nostri magazzini sicuri a partire da 155 m2
A 5 minuti dall'uscita dell'autostrada e proprio davanti a Losanna, spazi di stoccaggio a partire da 155 m2 nel seminterrato e accessibili tramite ascensore per merci e veicoli leggeri,
Affitto residuo Fr. 110.--/m2/anno:
155 m2: affitto mensile di Fr. 1'420.- + deposito per spese e costi accessori
288 m2: affitto mensile di Fr. 2'640.- + deposito per spese e costi accessori
292 m2: affitto mensile di Fr. 2'676.- + deposito per spese e costi accessori
Dettagli immobile
- Disponibile dal
- Su accordo



