Spazio ufficio in affitto - Chollerstrasse 23, 6312 Steinhausen
Perché amerai questa proprietà
Opzioni di layout flessibili
Spazio cucina separato
Scelta di pavimenti personalizzati
Organizza una visita
Prenota una visita con Lena oggi!
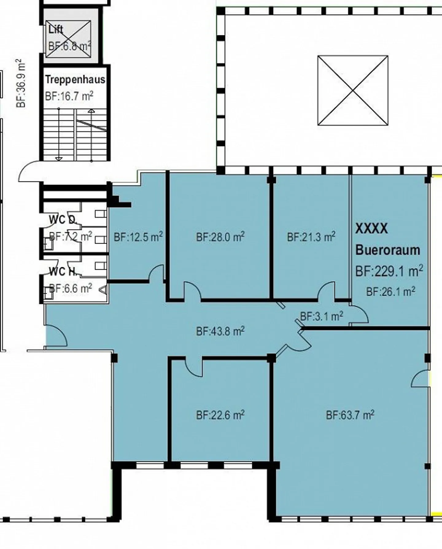
La tua nuova sede d'ufficio a steinhausen
Affittiamo questi spazi per uffici attraenti a Steinhausen immediatamente o su appuntamento.
I seguenti punti salienti sono convincenti:
- Pianta generosa e pratica con 226 m2 di superficie in affitto
- Espansione secondo i desideri dell'inquilino è possibile
- Stanza separata disponibile ad esempio per una cucina da tè
- Il pavimento può essere posato secondo i propri desideri
- Diversi uffici di diverse dimensioni in un'unica area
- Servizi igienici nel vano scala/corridoio disponibili per uso comune
Dettagli immobile
- Disponibile dal
- Su accordo
- Anno di costruzione
- 1990



