Commerciale in affitto - Poststrasse 22, 7000 Chur
Perché amerai questa proprietà
Posizione storica centrale
Spazio moderno ristrutturato
Layout delle stanze flessibili
Organizza una visita
Prenota una visita con Pfister oggi!
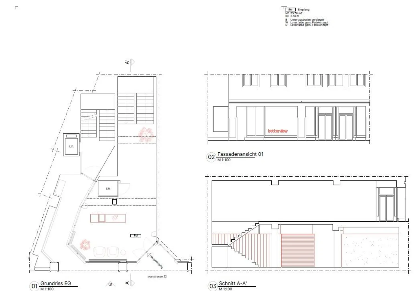
Spazio commerciale nel cuore del centro storico di Coira
L'immobile commerciale si trova in una posizione centrale nel centro storico di Coira e offre quindi un'eccellente accessibilità per clienti, pazienti o dipendenti. L'accogliente ingresso al piano terra dispone di un proprio accesso, un ascensore e una luminosa area reception, ideale come primo punto di contatto per i visitatori. Nel seminterrato, generosamente progettato, sono disponibili diverse sale utilizzabili in modo flessibile, tra cui varie sale per trattamenti o di lavoro, una cucina be...
Dettagli immobile
- Disponibile dal
- Su accordo
- Anno di ristrutturazione
- 2023



