Spazio ufficio in affitto - Bahnhofstrasse 21b, 9470 Buchs SG
Perché amerai questa proprietà
Posizione centrale
Accesso tramite passaggio coperto
Ampie vetrine per visibilità
Organizza una visita
Prenota una visita con Zgraggen oggi!
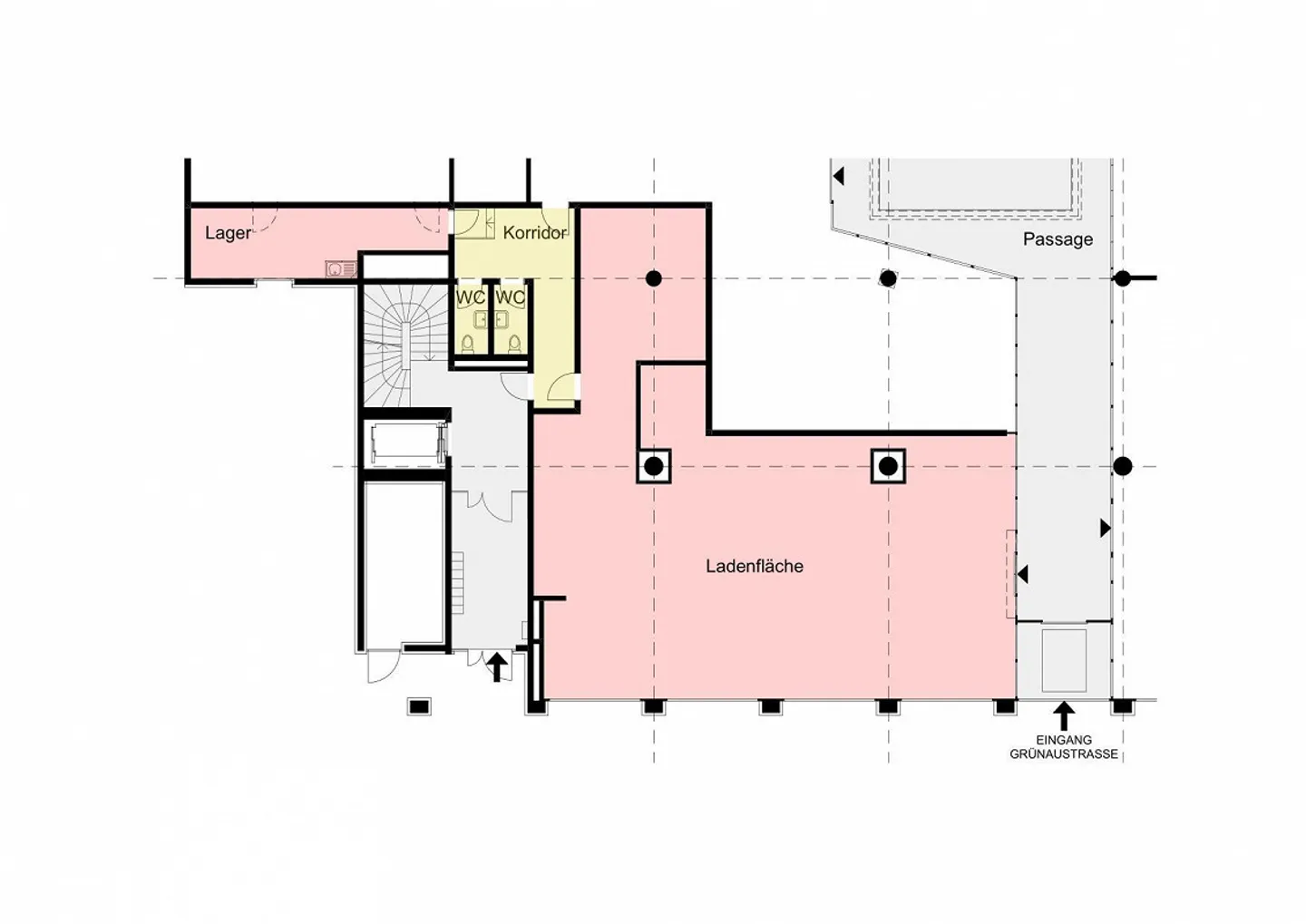
Negozio in affitto
Stai cercando un locale commerciale nel cuore di Buchs? Allora sei nel posto giusto.
- Superficie di vendita a condizioni interessanti
- La proprietà si trova in una posizione privilegiata nel mezzo di Bahnhofstrasse
- Accesso alla proprietà dalla zona pedonale attraverso il passaggio coperto
- Situato su un asse di traffico principale di Buchs
- Area molto visibile, grazie a grandi vetrine verso Grünaustrasse e all'interno del passaggio
- Parcheggio pubblico nel seminterrato
- Mix di inquilini interes...
Dettagli immobile
- Disponibile dal
- Su accordo
- Anno di costruzione
- 1996



