Negozio in affitto - Bahnhofstrasse 21b, 9470 Buchs SG
Perché amerai questa proprietà
Posizione centrale in Bahnhofstrasse
Ampie vetrine per visibilità
Accesso dalla zona pedonale
Organizza una visita
Prenota una visita con Zgraggen oggi!
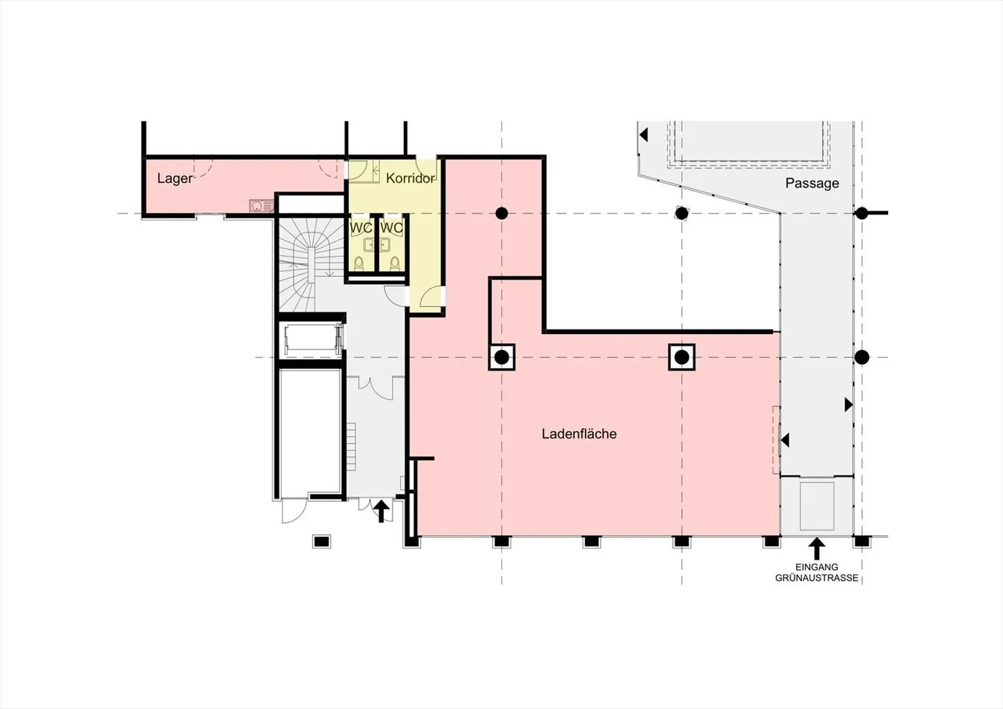
Negozio in affitto
Stai cercando un locale commerciale nel cuore di Buchs? Allora sei nel posto giusto.
- Superficie di vendita a condizioni interessanti
- La proprietà si trova in una posizione privilegiata nel centro di Bahnhofstrasse
- Accesso alla proprietà dalla zona pedonale attraverso il passaggio coperto
- Situato su un asse di traffico principale di Buchs
- Area molto visibile, grazie a grandi vetrine che si affacciano su Grünaustrasse e all'interno del passaggio
- Parcheggio pubblico nel seminterrato
- Mix di i...
Dettagli immobile
- Disponibile dal
- 01.06.2026
- Anno di costruzione
- 1996
- Superficie abitabile
- 190 m²
- Superficie utilizzabile
- 190 m²



