Commerciale in affitto - Rue Du Marché 20, 1204 Genève
Perché amerai questa proprietà
Ambiente di lavoro eccezionale
Sala conferenze moderna
Standard edilizi di alta qualità
Organizza una visita
Prenota una visita oggi!
Uffici nel cuore del centro città
Uffici nel cuore di Ginevra
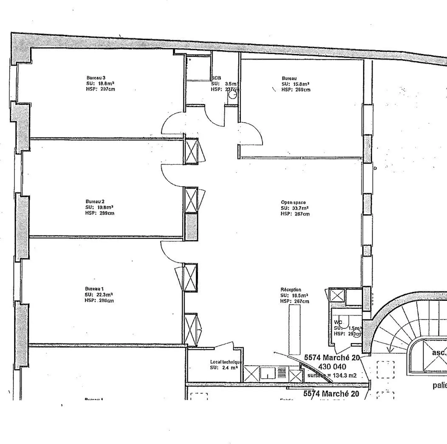
Situati idealmente in un edificio di alta qualità, questi uffici offrono un ambiente di lavoro eccezionale e sono composti come segue:
3 uffici privati
1 open space
1 sala conferenze
2 servizi igienici
1 doccia
1 locale IT
Cablaggio periferico e scatole a pavimento
Affitto CHF 9'500.- / mese
Spese: CHF 170.-/mese
Per ulteriori informazioni o per organizzare una visita, contattare:
Fabiola Christe
? [vedi dettagli di contatto](#contact)
Dettagli immobile
- Disponibile dal
- Su accordo
- Superficie abitabile
- 134 m²
- Superficie utilizzabile
- 134 m²



