Spazio ufficio in affitto - Neuwiesenstrasse 20, 8400 Winterthur
Perché amerai questa proprietà
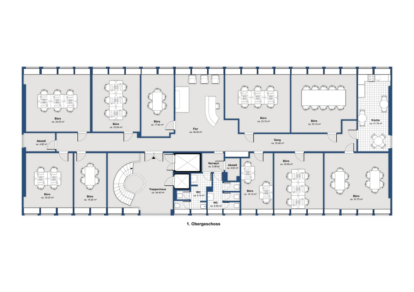
Ufficio luminoso e modulare
Cucina e lounge per il personale
Ottimo accesso ai trasporti pubblici
Organizza una visita
Prenota una visita con Wincasa oggi!
L'edificio commerciale si trova in una posizione eccellente - a soli 5 minuti a piedi dalla stazione ferroviaria di Winterthur - Spazio attraente con molta luce naturale - Completamente sviluppato (espansione dell'inquilino) - Design dell'ufficio modulare disponibile (possibili adattamenti individuali) - Cucina per il tè/salone per i dipendenti - Ascensore per passeggeri/merci disponibile - Servizi igienici integrati - Spazi di stoccaggio e posti auto possono essere affittati aggiuntivamente se ...
Dettagli immobile
- Disponibile dal
- Su accordo
- Anno di costruzione
- 1968
- Superficie abitabile
- 389 m²
- Superficie utilizzabile
- 389 m²



