Spazio ufficio in affitto - Neuwiesenstrasse 20, 8400 Winterthur
Perché amerai questa proprietà
Posizione privilegiata
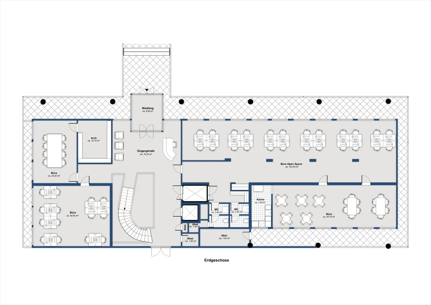
Layout flessibile
Parcheggio incluso
Organizza una visita
Prenota una visita con Walder oggi!
Uffici di alta qualità direttamente vicino alla stazione principale di winterthur
Stai cercando una nuova sede per la tua azienda?
Allora abbiamo l'offerta giusta per te!
Posizione eccellente – a soli 5 minuti a piedi dalla stazione di Winterthur!
L'edificio commerciale offre le condizioni ideali per il successo della tua attività:
• Spazi ufficio luminosi e attraenti
• Finiture interne completamente realizzate – pronto per l'uso
• Design modulare e flessibile, possibilità di adattamenti individuali
• Cucina e sala ricreazione per i dipendenti
• Ascensore persone e merci disponibile
•...
Dettagli immobile
- Disponibile dal
- Su accordo
- Anno di costruzione
- 1968
- Anno di ristrutturazione
- 1994
- Superficie abitabile
- 183 m²
- Superficie utilizzabile
- 183 m²



