Spazio di archiviazione in affitto - Mellingerstrasse 20, 5400 Baden
Perché amerai questa proprietà
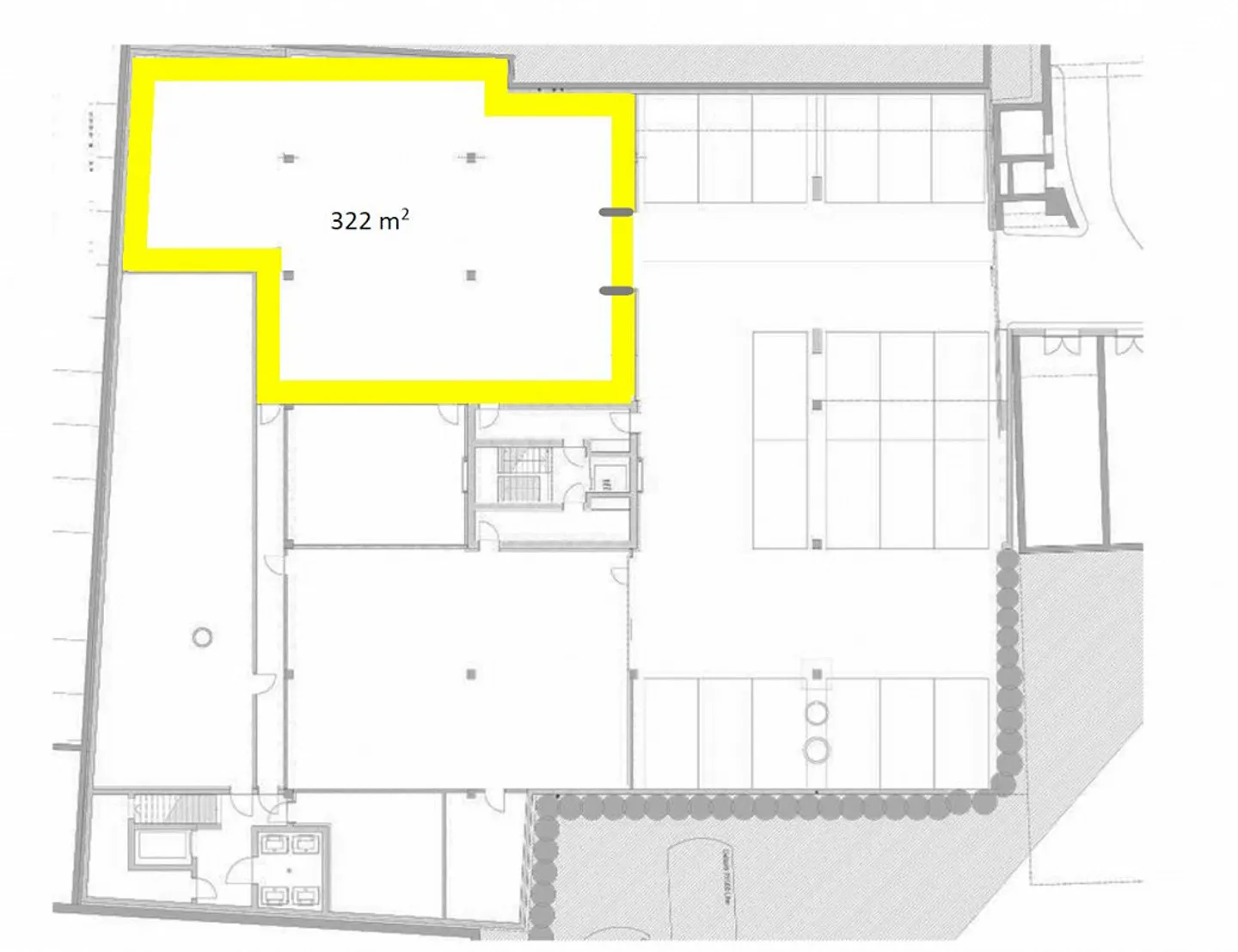
322 m2 di stoccaggio
Accesso 24/7 disponibile
Termini di affitto flessibili
Organizza una visita
Prenota una visita con ***Kontaktanfrage oggi!
Grosser lagerraum zur vermietung
Grosser Lagerraum zur Vermietung Ideal für Aufbewahrung, Stauraum & Archiv!
Suchen Sie einen flexiblen und sicheren Platz für Ihre Lagerbedürfnisse? Wir bieten einen geräumigen Lagerraum zur Miete an, der sich perfekt für verschiedene Anwendungen eignet:
Details:
- Fläche: 322 m2, grosszügiger Platz für Ihre Gegenstände
- Lage: Mellingerstrasse 20 in 5400 Baden, gut erreichbar
- Zugang: Rund-um-die-Uhr Zugang, jederzeit für Sie verfügbar
- Zufahrt: Direkt in den Lagerraum möglich (Torhöhe 2.05...
Dettagli immobile
- Disponibile dal
- Su accordo



